Beschrijving

Bachlaan 16 – ruim, modern en instapklaar
Aan de Bachlaan staat deze verrassend ruime woning met een woonoppervlakte van maar liefst 128 m². De solide basis uit de jaren zeventig is hier volledig naar het heden gebracht: strak, modern en tot in de puntjes verzorgd.

De begane grond is in 2024 compleet gerenoveerd, waarbij de keuken, vloeren, deuren en het toilet zijn vernieuwd. Dat zie je én voel je meteen: alles is fris, eigentijds en stijlvol afgewerkt. De gevel is mooi gestraald en de donkere kunststof kozijnen geven het huis een moderne uitstraling die direct in het oog springt.

Ook op het gebied van comfort en verduurzaming is alles dik in orde. Op elke verdieping is een airco geplaatst en dankzij zonnepanelen en diverse isolatiemaatregelen komt de woning uit op energielabel B. Voeg je nog spouwmuurisolatie toe, dan springt hij zelfs naar label A.

De eerste verdieping biedt drie ruime slaapkamers en een moderne badkamer (2020) met dubbele wastafel en inloopdouche. Op zolder is nog volop extra ruimte, met een royale slaapkamer en grote kast. Hier kun je met gemak nog een extra kamer of werkplek realiseren.

Buiten is het genieten in de diepe achtertuin met een indrukwekkende schuur van circa 6 bij 6 meter. Ideaal voor wie graag klust, opslagruimte zoekt of droomt van een hobby- of werkruimte. De auto kun je altijd kwijt achter de woning, en wie dat wil kan de schuur aan de zijkant zelfs uitbreiden tot carport.

Bachlaan 16 is een woning die alles meebrengt wat je zoekt: ruimte, comfort en moderne afwerking. Gelegen in een kindvriendelijke buurt en helemaal klaar voor een nieuwe eigenaar.

Indeling

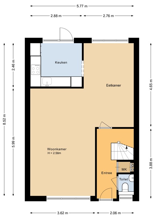
Bij binnenkomst via de voordeur betreed je de entreehal, waar zich de meterkast (MK) en het toilet met fontein bevinden. Vanuit de hal is er toegang tot de trapopgang naar de eerste verdieping en de ruime woonkamer.

De woonkamer heeft een royale lengte en een plafondhoogte van 2,56 meter, waardoor de ruimte licht en luchtig aanvoelt. Dankzij de grote raampartijen aan de voorzijde valt er veel daglicht binnen. Aan de achterzijde bevindt zich de half open keuken, die in directe verbinding staat met de eetkamer.

De keuken is praktisch ingedeeld met een hoekopstelling en voorzien van een kookplaat, afzuigkap, spoelbak en voldoende kastruimte. Vanuit de keuken is er een deur naar de achtertuin, ideaal voor wie graag buiten eet of kookt.

De eetkamer ligt centraal tussen de keuken en woonkamer in, waardoor deze verdieping een open en gezellige leefruimte vormt. De combinatie van de ruime woonkamer, eetgedeelte en open keuken zorgt voor een moderne en functionele indeling — perfect voor zowel gezinnen als stellen die graag gasten ontvangen.

Eerste verdieping

Via de vaste trap kom je op de overloop, die toegang biedt tot alle vertrekken op deze verdieping. De overloop is ruim van opzet en heeft een prettig lichtinval.

Aan de voorzijde bevindt zich een ruime slaapkamer die uitstekend dienst kan doen als hoofdslaapkamer. Dankzij de grote ramen is deze kamer heerlijk licht en voelt hij aangenaam ruim aan.

Aan de achterzijde liggen nog twee slaapkamers. Eén daarvan is royaal van formaat en daardoor eveneens geschikt als ouderslaapkamer. Deze kamer is bovendien voorzien van een praktische inbouwkast. De andere slaapkamer aan de achterzijde heeft een prettige indeling en leent zich uitstekend als kinderkamer, werkkamer of logeerkamer.

Daarnaast is er op de verdieping een handige kast aanwezig die zorgt voor extra bergruimte.

De badkamer is compact maar compleet, voorzien van een wastafelmeubel, toilet en douche.

Tweede verdieping

Via de vaste trap bereik je de tweede verdieping. De overloop is verrassend ruim en voorzien van een dakkapel, waardoor er veel daglicht binnenvalt. Hier bevinden zich tevens de aansluitingen voor de wasapparatuur en de opstelplaats van de cv-installatie.

Aangrenzend bevindt zich een royale slaapkamer met een prettige lichtinval. De ruimte heeft een fijne indeling en is ideaal te gebruiken als hoofdslaapkamer, logeerkamer of bijvoorbeeld als rustige thuiswerkplek.

Daarnaast beschikt deze verdieping over extra bergruimte achter de knieschotten en in de vaste kast, wat zorgt voor een opgeruimd geheel.

Tuin

De ruime en onderhoudsvriendelijke achtertuin is volledig bestraat met een combinatie van sierbestrating en grote betontegels, wat zorgt voor een strak en verzorgd geheel. Langs de zijkant is een verhoogde border met natuurstenen rand aangelegd, voorzien van vaste beplanting en een fraaie boom die zorgt voor groen en schaduw.

De berging van maar liefst 5,99 m x 5,75 m is voorzien van een deur naar de tuin en een plat dak, passend bij de stijl van de woning.

Dankzij de gunstige ligging is er de hele dag door een fijne combinatie van zon en schaduw. Er is voldoende ruimte voor meerdere zitplekken; direct achter de woning bevindt zich een gezellig terras met ruimte voor een grote eettafel en stoelen.

De tuin is volledig omsloten en biedt veel privacy. Aan de ene zijde bevindt zich een karakteristieke gemetselde erfafscheiding met ingebouwde verlichting, terwijl de andere zijde is voorzien van een houten schutting die zorgt voor een warme, natuurlijke uitstraling.
Door de verschillende plantenbakken, potten met groen en kleurige accenten ontstaat een sfeervolle buitenruimte waar u heerlijk kunt ontspannen.

Bijzonderheden

Renovatie complete begane grond 2024
Keuken, 2024
Badkamer, 2020
10 zonnepanelen
3 airco's
Rolluiken boven
Gevels gestraald en gevoegd.
Voor en achtertuin recent vernieuwd

Kenmerken