Beschrijving

Zodra je hier binnenstapt, merk je het meteen: dit is een huis met veel ruimte. Van de begane grond tot aan de bovenste etage voelt de woning royaal en doordacht opgezet. Met meer dan 130 m² woonoppervlakte biedt Bachlaan 39 volop leefruimte op elke verdieping. Een woning waarin je moeiteloos meegroeit en waar iedere fase van het wonen past.

De living vormt een prettige basis voor het dagelijkse leven, met volop ruimte voor een comfortabele zithoek en een royale eethoek. De indeling voelt logisch en ruimtelijk aan, waardoor je hier eenvoudig jouw eigen woonstijl kunt laten samensmelten met het huis.

De verdiepingen boven zetten die ruimtelijke beleving moeiteloos voort. Dankzij de zolder met dakkapellen aan beide zijden is hier een volwaardige etage ontstaan die aanvoelt als een extra woonlaag. Of je hier nu denkt aan een extra slaapkamer, een werkruimte of een hobbykamer: de ruimte is er.

Wat deze woning extra aantrekkelijk maakt, is de vrije ligging aan de achterzijde. Geen directe inkijk, maar een open gevoel dat je elke dag opnieuw ervaart. Direct achter de woning ligt een park met speeltuin, wat deze plek bijzonder geschikt maakt voor gezinnen en jonge kopers. Een veilige, groene omgeving waar kinderen vrij kunnen spelen en jij geniet van rust en privacy.

De achtertuin ligt op het westen en is heerlijk diep. Dankzij het perceel van maar liefst 160 m² geniet je hier van een fijne middag- en avondzon en is er volop ruimte om het buitenleven echt te beleven.

Gelegen in Bunschoten-Spakenburg woon je hier in een prettige, kindvriendelijke omgeving met groen, speeltuinen en dagelijkse voorzieningen binnen handbereik.

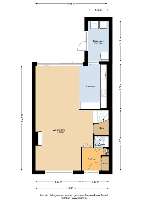
Indeling

Via de entree kom je binnen in de hal met toegang tot het toilet, de meterkast en een vaste kast. Vanuit de hal loop je door naar de ruime woonkamer. Deze royale leefruimte is prettig licht dankzij de grote raampartijen en biedt volop mogelijkheden voor een comfortabele zit- en eethoek.

Aan de achterzijde van de woonkamer bevindt zich een schuifpui die directe toegang geeft tot de tuin en zorgt voor een mooie verbinding tussen binnen en buiten. In de woonkamer is tevens de trapopgang naar de eerste verdieping aanwezig, subtiel geïntegreerd in de leefruimte.

De keuken sluit aan op de woonkamer en is praktisch opgesteld. Vanuit hier is de bijkeuken bereikbaar, voorzien van extra bergruimte en de aansluitingen voor wasmachine en droger, met tevens een deur naar buiten. De begane grond is overzichtelijk en functioneel ingedeeld en biedt een fijne basis voor comfortabel wonen.

Eerste verdieping

Via de trap vanuit de woonkamer komt u uit op de overloop, die toegang biedt tot alle vertrekken op deze verdieping. Hier bevinden zich drie slaapkamers, waarvan twee ruime kamers en een derde kamer die zich ook uitstekend leent als werk- of hobbyruimte. Alle slaapkamers zijn prettig van formaat, beschikken over voldoende daglicht en zijn voorzien van elektrische rolluiken (2025).

De badkamer is centraal gelegen en functioneel ingericht met een ligbad, douche en wastafel. De indeling van deze verdieping is praktisch en overzichtelijk, waarbij het extra comfort van de elektrische rolluiken bijdraagt aan een aangenaam woon- en slaapklimaat.

Tweede verdieping

Via de vaste trap bereikt u de ruime zolderverdieping. Deze verdieping is ingericht als een royale slaapkamer met een prettige plafondhoogte en volop daglicht. Dankzij de afmetingen en indeling is dit een veelzijdige ruimte, geschikt als master bedroom, werkruimte of hobbykamer.

Daarnaast beschikt de zolder over een aparte berging waarin zich de cv-ruimte bevindt, evenals meerdere vaste kasten onder de schuine delen, wat zorgt voor verrassend veel bergruimte. Een praktische en comfortabele verdieping die de woning extra woonoppervlakte en flexibiliteit geeft.

Tuin

De achtertuin is gunstig gelegen op het westen, waardoor u hier tot in de avond van de zon kunt genieten. De tuin is ruim van opzet en praktisch ingericht met meerdere terrassen, zodat er altijd een fijne plek is om buiten te zitten. Of u nu kiest voor een gezellige eethoek bij de woning of een rustige plek verder in de tuin, er is volop ruimte voor ontspanning en samenzijn.

Achterin de tuin bevindt zich een vrijstaande berging, ideaal voor fietsen, tuingereedschap en extra opslag. De tuin is grotendeels bestraat en gecombineerd met groen, wat zorgt voor een prettige balans tussen comfort en sfeer. Dankzij de beschutte ligging biedt deze tuin veel privacy en vormt hij een fijne verlenging van de woonruimte. Via de poortdeur aan de achterzijde heeft u bovendien directe toegang tot de aangrenzende speeltuin, wat deze tuin extra aantrekkelijk maakt voor gezinnen met kinderen.

Bijzonderheden

- Volledig voorzien van kunststof kozijnen
- 10 zonnepanelen, 2023
- Zolder gerenoveerd in 2024 incl. airco

Kenmerken