Beschrijving

Een buitenkans voor starters: Boterland 13 is er zo één die je niet vaak tegenkomt. Dit moderne appartement heeft niet alleen een energielabel A+, maar ook een bijzonder fijne ligging in het gebouw.

Je woont hier helemaal bovenin, op de hoek, met een vrij uitzicht en prachtig licht dat binnenvalt door het extra zijraam. De woonkamer oogt hierdoor ruim en levendig, met een natuurlijke verbinding naar het zonnige balkon op het zuiden. Hier geniet je van de zon tot in de late uurtjes.

Het appartement is strak en met zorg afgewerkt; echt instapklaar. De keuken en badkamer zijn netjes, de kleuren tijdloos en de afwerking modern. Met twee slaapkamers is er volop ruimte voor logees, een thuiswerkplek of hobbykamer.

Boterland 13 ligt op een prettige, rustige locatie met alle dagelijkse voorzieningen binnen handbereik. Ideaal als je op zoek bent naar comfort, licht en gemak 
helemaal klaar voor een nieuw begin.

Indeling

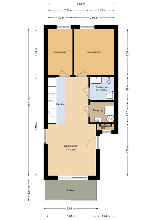
Aan de voorzijde bevindt zich de lichte woonkamer met een plafondhoogte van 2,65 meter. De grote raampartijen zorgen voor veel natuurlijk licht en geven toegang tot het balkon op het zuiden, waar je de hele dag van de zon kunt genieten.

De open keuken ligt in het verlengde van de woonkamer en is voorzien van een praktisch keukenblok met een kookplaat, oven en spoelbak. Dankzij de open indeling is dit een prettige plek om te koken en tegelijk contact te houden met het woongedeelte.

Aan de achterzijde liggen twee goed bemeten slaapkamers. Beide kamers zijn rechthoekig van vorm en daardoor uitstekend in te richten als hoofdslaapkamer en logeer- of werkkamer.

De badkamer is centraal gelegen en beschikt over een douche, wastafel en toilet. Aangrenzend bevindt zich een berging met ruimte voor de wasmachine en droger, en daarnaast een meterkast (MK) voor de technische installaties.

Balkon

Het ruime balkon ligt op het zuiden en biedt voldoende plek voor een zitje. Hier kun je in alle rust genieten van de zon en het uitzicht op de omgeving.

Bijzonderheden

- Elektrisch zonnescherm voorzijde
- Airco woonkamer
- Gezamenlijke tuin begane grond
- 5 Zonnepanelen

Kenmerken