Beschrijving

Hartmanskamp 8 – Perfect in balans

Dit appartement in de populaire wijk Rengerswetering biedt je net dat beetje extra. Een tweekamerappartement, maar verrassend ruimtelijk ingedeeld. De brede woonkamer voelt licht en open aan, met ruimte voor zowel een gezellige zithoek als een stijlvolle eethoek – alles in perfecte balans.

Afgelopen jaar heeft de woning een frisse update gekregen, waardoor het geheel nu modern en comfortabel aanvoelt. De PVC-vloer, het verlaagde plafond en de strakke afwerking vormen samen een eigentijds geheel dat direct goed voelt.

Het zonnige balkon ligt op het zuiden, zodat je het hele jaar door van de zon kunt genieten – van een kop koffie in de ochtend tot een borrel in de namiddag.

Een appartement dat klopt in sfeer, indeling én gevoel. Zie jij dat ook? Dan is dit jouw kans om het zelf te ervaren.

Indeling

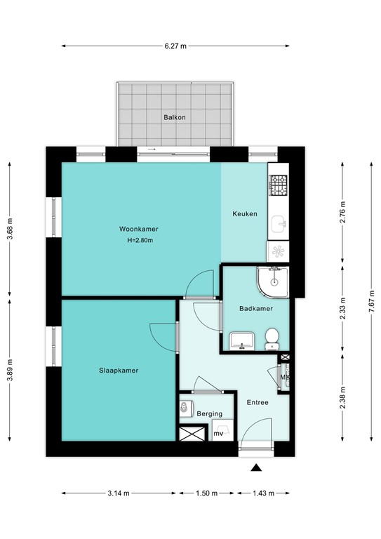
Via de entree kom je in de hal met toegang tot alle vertrekken. Hier bevinden zich tevens de meterkast en een berging met aansluiting voor de wasmachine en droger.

De lichte woonkamer met een plafondhoogte van 2,80 meter biedt ruimte voor een comfortabele zithoek en eethoek. De open keuken is praktisch ingedeeld en voorzien van inbouwapparatuur. Vanuit de woonkamer is er toegang tot het balkon, waar je heerlijk buiten kunt zitten.

De slaapkamer ligt aan de rustige zijde van de woning. De badkamer is uitgerust met een douche, wastafel en toilet.

Balkon

Het zonnige balkon van circa 8 m² ligt op het zuiden en is toegankelijk vanuit de woonkamer. Kortom een heerlijke plek om van de zon te genieten.

Kenmerken