Beschrijving

Wonen op een plek waar uitzicht, rust en karakter samenkomen… Havenstraat 43 is zo’n woning die je maar zelden tegenkomt. Hier kijk je elke dag vrij uit over de historische haven van Spakenburg, een levend schilderij dat nooit verveelt.

Deze vrijstaande woning staat op een royaal perceel van maar liefst 495 m² en biedt alles wat je zoekt in ruimte en comfort. De woning is in 1990 gebouwd en slim gepositioneerd, iets verhoogd ten opzichte van de straat. Daardoor geniet je niet alleen van een prachtig uitzicht, maar ook van een fijne mate van privacy. Binnen voelt het direct ruim en prettig aan, met een indeling die zich moeiteloos aanpast aan jouw woonwensen.

Op dit moment is de woning levensloopbestendig ingericht, maar ook als gezinswoning komt hij volledig tot zijn recht. Op de verdieping bevinden zich meerdere slaapkamers en een badkamer, met de mogelijkheid om eenvoudig extra kamers te realiseren. De master bedroom is daarbij een absolute blikvanger. Met een Frans balkon op het oosten word je hier wakker met de opkomende zon en het serene beeld van de haven en haar karakteristieke botters op de achtergrond.

Buiten is het minstens zo aantrekkelijk. De diepe achtertuin ligt op het westen en biedt volop ruimte om van de zon te genieten. De diepe oprit biedt plaats aan meerdere auto’s en achter op het perceel vind je een garage, wat het geheel compleet maakt.

De ligging in de Havenstraat is simpelweg uniek. Midden in het centrum, met alle voorzieningen op loopafstand, maar tegelijkertijd met een gevoel van vrijheid en uitzicht dat je hier bijna nergens anders vindt.

Een bijzondere woning op een uitzonderlijke plek. Dit is wonen in Spakenburg op z’n mooist.

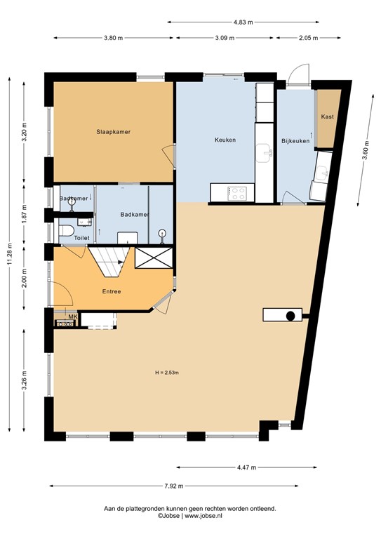
Indeling

Via de entree kom je binnen in de hal met meterkast, toilet en trapopgang. Vanuit hier heb je toegang tot de ruime en lichte woonkamer, die door de brede opzet een prettige leefruimte biedt.

Aan de achterzijde bevindt zich de open keuken, die in verbinding staat met de praktische bijkeuken met extra bergruimte en aansluitingen voor witgoed.

Verder beschikt de begane grond over een slaapkamer en een badkamer, wat deze woning ook geschikt maakt voor gelijkvloers wonen.

Eerste verdieping

Via de overloop heb je toegang tot twee ruime slaapkamers, beide met een prettige lichtinval. De slaapkamer aan de achterzijde beschikt over een balkon, een fijne plek om even buiten te zitten. De voorste slaapkamer is voorzien van een Frans balkon met een fraai uitzicht op de haven.

De badkamer is centraal gelegen en voorzien van de gebruikelijke voorzieningen. Daarnaast is er een praktische berging en kastruimte aanwezig, ideaal voor extra opslag.

Overige verdiepingen

Kelder:
De woning beschikt over een praktische kelder, ideaal te gebruiken als provisieruimte of voor extra opslag. Dankzij de goede afmetingen is er voldoende plek voor het opbergen van voorraad en seizoensspullen.

Garage:
De woning beschikt over een ruime, vrijstaande garage met voldoende plek voor het stallen van een auto, fietsen en extra opslag. Dankzij de praktische indeling is de garage ook ideaal te gebruiken als werk- of hobbyruimte.

Via een vlizotrap is de zolderverdieping bereikbaar, waar je beschikt over verrassend veel extra bergruimte. Een ideale plek voor het opbergen van seizoensspullen en overige zaken die je niet dagelijks nodig hebt.

Balkon

Het balkon is bereikbaar vanuit de slaapkamer en is gunstig gelegen op het westen. Hierdoor geniet je hier volop van de middag- en avondzon. Een fijne plek om na een lange dag te ontspannen.

Tuin

De woning beschikt over een riante, fraai aangelegde tuin die is gelegen op het westen. Hierdoor geniet je hier volop van de zon tot in de late uurtjes.

De tuin biedt een mooie combinatie van groen en terras, waardoor er altijd wel een fijne plek is om te zitten, te ontspannen of te genieten van het buitenleven. Dankzij de royale afmetingen is er volop ruimte voor zowel kinderen om te spelen als voor het creëren van meerdere zitplekken.

Kenmerken