Beschrijving

Aan de Johannes Post 8 staat een fijne gezinswoning die netjes is onderhouden en waar je met een paar kleine ingrepen al snel jouw eigen draai aan kunt geven. Dankzij de uitbouw aan de achterzijde geniet je hier van een verrassend ruime begane grond, met vloerverwarming die zorgt voor extra comfort. Het is een lichte, open ruimte waar je eenvoudig verschillende woonwensen kunt combineren – van een gezellige zithoek tot een grote eettafel voor lange avonden met familie en vrienden.

De tuin is zonder twijfel één van de grote pluspunten. Diepe ligging, volop privacy én de zon de hele dag op het terras – de zuidligging maakt dit tot een heerlijke buitenruimte. Hier kun je ontspannen, tuinieren of juist lekker loungen. De eigen oprit met carport maakt het plaatje compleet: parkeren doe je gewoon op eigen terrein, droog en direct bij huis.

De woning is netjes onderhouden en functioneel ingericht. Er is een solide basis gelegd, en met wat persoonlijke aanpassingen is dit huis weer helemaal naar eigen smaak te maken. 

Je woont hier in een rustige, kindvriendelijke buurt met alle voorzieningen in de buurt: scholen, speeltuinen, winkels en sportclubs zijn vlot bereikbaar. Daarbij ben je met de fiets zo in het gezellige dorpscentrum van Bunschoten-Spakenburg, en ook de uitvalswegen liggen op korte afstand.

Johannes Post 8 biedt alles wat je nodig hebt voor comfortabel wonen, met ruimte binnen én buiten – een kans die je niet wilt laten lopen.

Indeling

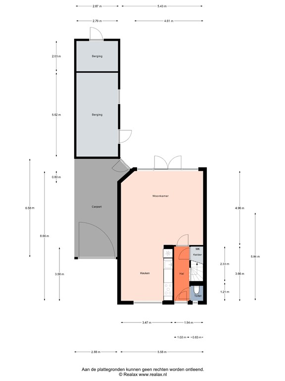
Entree
Voorentree met toegang tot het toilet, trapopgang, meterkast en woonkamer.

Woonkamer
Tuingerichte woonkamer met openslaande deuren naar de tuin.

Keuken
Keuken aan de voorzijde van de woning. Moderne keuken met diverse inbouwapparatuur, waaronder een koelkast, combi(stoom)oven, vaatwasser, gaskookplaat en afzuigkap.

Eerste verdieping

Overloop
Overloop met toegang tot de badkamer, drie slaapkamers en trapopgang naar de tweede verdieping.

Badkamer
Badkamer met inloopdouche, toilet en wastafel.

Slaapkamers
Eén slaapkamer aan de voorzijde van de woning. Twee slaapkamers aan de achterzijde.

Tweede verdieping

Overloop
Overloop met wasmachine- en drogeraansluiting. Toegang tot slaapkamer.

Slaapkamer
Ruime slaapkamer, vergroot door een dakopbouw.

Tuin

Zonnige tuin op het zuiden. Aan de achterzijde een veranda. Aan de voorzijde van de woning een carport en vrijstaande garage. Tuin is netjes aangelegd.

Bijzonderheden

Uitgebouwde begane grond met vloerverwarming

Dakopbouw op de tweede etage

Moderne keuken uit 2020

Bestrating en buitenschilderwerk uitgevoerd in 2021

Badkamer vernieuwd in 2015

Kenmerken