Beschrijving

Levensloopbestendig wonen op een toplocatie

Op zoek naar een woning die comfort en gemak naadloos combineert? Kubboot 7 is zo’n zeldzame vondst. Alles wat je nodig hebt vind je gelijkvloers: een ruime woonkamer met fijne lichtinval, een keuken en praktische bijkeuken, én een slaapkamer met badkamer op de begane grond.

Toch blijft er boven volop ruimte over. Ideaal voor logés, kleinkinderen die blijven slapen of een hobby die vraagt om een eigen plek. Zo heb je de luxe van gelijkvloers wonen, zonder in te leveren op mogelijkheden.

Dankzij de recente bouw vormt de woning een solide basis om helemaal naar je eigen smaak te maken. En de ligging maakt het plaatje compleet: op loopafstand van het gezellige centrum van Spakenburg woon je hier niet alleen praktisch, maar ook heerlijk centraal.

Een pareltje als dit komt niet vaak voorbij. Zie jij jezelf hier al neerstrijken?

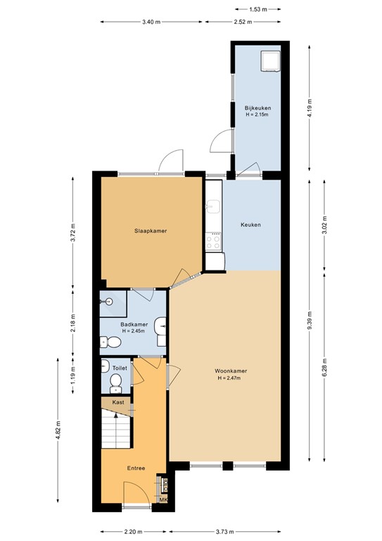
Indeling

Via de entree bereikt u de hal met toilet, bergkast en trapopgang. De lichte woonkamer vormt het hart van de woning en staat in verbinding met de keuken. Aansluitend bevindt zich een praktische bijkeuken, ideaal voor extra opslag of het plaatsen van witgoed.

De woning beschikt verder over een ruime slaapkamer en een badkamer met douche, wastafel en tweede toilet.

Eerste verdieping

Via de overloop bereikt u een tweede, ruime slaapkamer. Daarnaast zijn er meerdere bergingen aanwezig, ideaal voor het opbergen van spullen of het creëren van een hobbyruimte. Dankzij de praktische indeling en de vaste kasten is er volop bergruimte beschikbaar, terwijl de verdieping tegelijkertijd voldoende leefcomfort biedt.

Tuin

De fraai aangelegde achtertuin is onderhoudsvriendelijk en biedt volop ruimte om buiten te genieten. Er is voldoende plek voor een eettafel en een loungehoek, zodat u zowel in de zon als onder de overkapping heerlijk kunt ontspannen. Dankzij de houten berging met overkapping beschikt u over extra bergruimte en een gezellige plek om tot in de late uurtjes buiten te zitten. De tuin is bereikbaar via een achterom en heeft een mooie combinatie van bestrating en groen, wat zorgt voor een verzorgde uitstraling.

Kenmerken