Beschrijving

Wonen in een appartement met ruimte, licht en een uitzicht dat nooit verveelt. In dit fraaie appartement aan de Plecht 88 komen comfort en vrijheid moeiteloos samen.

Op de derde etage van een verzorgd complex uit 2006 vind je hier een woning van meer dan 100 m² waar alles net even ruimer aanvoelt. Zodra je binnenstapt merk je dat meteen. De woonkamer en de open keuken lopen mooi in elkaar over en vormen samen een fijne leefruimte met veel licht en een prachtig vrij uitzicht. Of je nu staat te koken of ontspannen op de bank zit, het uitzicht over het groen is altijd aanwezig.

Vanuit de woonkamer stap je zo het ruime balkon op het zuiden op. Een heerlijke plek waar je volop van de zon kunt genieten en waar het uitzicht nog eens extra tot zijn recht komt. Hier zit je al snel lekker met een kop koffie of een goed glas wijn terwijl de dag rustig voorbij trekt.

Ook praktisch gezien is het hier goed geregeld. In de parkeergarage onder het gebouw beschik je over een eigen parkeerplaats, zodat je altijd je auto kwijt kunt. Het complex is voorzien van een lift, wat het dagelijks comfort compleet maakt.

De ligging is bovendien prettig centraal in Spakenburg. Op korte afstand van het centrum en de voorzieningen, maar tegelijkertijd rustig gelegen met een mooi uitzicht over het groen. Een fijne plek waar je het gemak van een appartement combineert met ruimte en uitzicht.

Ben je toe aan een volgende stap en overweeg je de overstap naar een appartement? Dan is Plecht 88 er absoluut één om te bekijken.

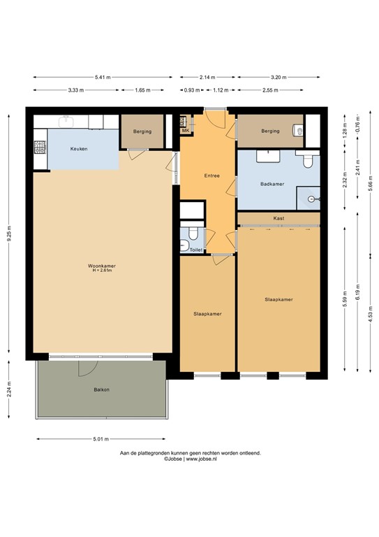
Indeling

Via de entree/hal met meterkast toegang tot alle vertrekken. Aan de voorzijde bevindt zich de keuken met aansluitend een praktische berging. De ruime en lichte woonkamer geeft toegang tot het balkon. Vanuit de hal bereik je tevens een separaat toilet, de badkamer en twee slaapkamers, waarvan één voorzien is van een vaste kast. Daarnaast is er nog een extra berging aanwezig.

Balkon

Het royale balkon is gunstig gelegen op het zuiden, waardoor je hier de hele dag kunt genieten van de zon. Dankzij de overkapping is het ook op warmere dagen een fijne plek om te verblijven. Het balkon biedt voldoende ruimte voor een zitje en geeft een vrij en weids uitzicht over het omliggende groen en de waterrijke omgeving, wat zorgt voor een heerlijk gevoel van rust en privacy.

Kenmerken