Beschrijving

Instapklare hoekwoning met veranda, luxe afwerking en zonnige tuin in Rengerswetering

Energielabel A – 5 slaapkamers – snel te betrekken

Waarom je dit huis wilt zien
•	Hoekwoning met extra privacy, lichtinval en ruimte
•	Volledig instapklaar en keurig onderhouden
•	Energielabel A, voorzien van zonnepanelen, rolluiken en screens
•	Zonnige tuin op het westen met stijlvolle veranda – tot ’s avonds genieten van de zon
•	Luxe keuken en badkamer, modern en smaakvol afgewerkt
•	Vijf slaapkamers, dus ideaal voor een gezin, thuiswerkplek of gastenruimte

Aan de Polkampen 9 woon je ruim, comfortabel en met nét dat beetje extra vrijheid door de hoekligging. Deze woning in de Rengerswetering is tot in de puntjes verzorgd en combineert een moderne afwerking met een heerlijke ligging.

Buiten begint het genieten al. De tuin ligt perfect op het westen, waardoor je hier tot in de avond zon hebt. Onder de moderne veranda met elektrische schermen is het in elk seizoen een fijne plek om te ontspannen, terwijl de vergrote schuur zorgt voor volop praktische bergruimte.

Binnen is de sfeer warm en uitnodigend. De woonkamer met vloerverwarming en openslaande deuren naar de tuin vormt het hart van het huis. Dankzij de klassieke ensuite-deuren is de keuken mooi afgescheiden, wat rust en karakter toevoegt aan het geheel.

Ook boven is het comfort goed doorgevoerd. De eerste verdieping biedt twee ruime slaapkamers en een complete badkamer met ligbad, douche en dubbele wastafel. De tweede etage is volledig ingericht en biedt extra ruimte voor slapen, werken of spelen.

Met een speeltuin voor de deur is de ligging is ideaal voor een jong gezin. De populaire wijk Rengerswetering staat bekend om haar rustige karakter, jonge bouwstijl en kindvriendelijke opzet.
Voorzieningen als basisscholen, supermarkt, sportvelden en het gezellige centrum van Spakenburg liggen allemaal binnen enkele minuten fietsen.
Daarnaast ben je met de auto in minder dan 15 minuten in Amersfoort en heb je snelle verbindingen richting A1 en A27.

Polkampen 9, een verzorgde, ruime hoekwoning waar comfort en gezinsleven samenkomen.

Indeling

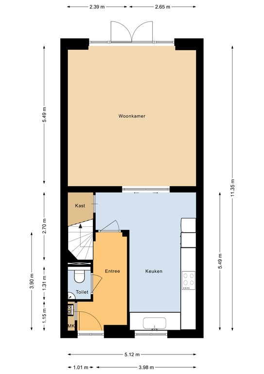
Bij binnenkomst via de voordeur komt u in de entree met voldoende ruimte voor een kapstok of garderobe. Vanuit de entree heeft u toegang tot de meterkast (MK), het toilet met fonteintje, en de trapopgang naar de verdieping. Daarnaast is er onder de trap een praktische trapkast aanwezig, ideaal als berging.

Aan de voorzijde van de woning bevindt zich de keuken. Deze is ruim opgezet en beschikt over een recht keukenblok met inbouwapparatuur en aansluitmogelijkheden voor alle gewenste voorzieningen. Dankzij de ligging aan de straatzijde heeft u hier prettig uitzicht en veel lichtinval. Daarnaast beschikt de keuken over een airco.

Aansluitend bereikt u de tuingerichte woonkamer. Deze royale en lichte ruimte strekt zich uit over de volledige breedte van de woning en biedt volop mogelijkheden voor een comfortabele zithoek en een ruime eettafel. Via dubbele openslaande deuren heeft u direct toegang tot de achtertuin, waardoor binnen en buiten mooi in elkaar overlopen.

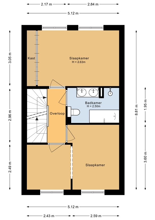
Eerste verdieping

De eerste verdieping is praktisch en overzichtelijk ingedeeld. Via de trap bereikt u de overloop, die toegang geeft tot de verschillende vertrekken.

Aan de achterzijde van de woning bevindt zich een ruime slaapkamer over de volle breedte, voorzien van een handige ingebouwde kast en een airco. Dankzij de breedte van de kamer is er voldoende plaats voor een groot bed en extra kasten of een werkhoek.

Aan de voorzijde vindt u nog twee slaapkamers. Beide kamers zijn goed van formaat en veelzijdig in te richten, bijvoorbeeld als kinderkamer, werkkamer of logeerkamer.

Centraal op de verdieping ligt de badkamer. Deze is modern en compleet uitgerust met een ligbad, tweede toilet, dubbele wastafel en een separate douche. Dankzij de praktische indeling is de badkamer zowel functioneel als comfortabel in gebruik.

Tweede verdieping

Via de vaste trap bereikt u de tweede verdieping. De overloop biedt ruimte voor de wasmachine- en drogeraansluiting en geeft toegang tot de aanwezige vertrekken.

Aan zowel de voor- als achterzijde bevindt zich een volwaardige slaapkamer. Deze kamers zijn praktisch van opzet en geschikt voor verschillende doeleinden, zoals logeerkamer, studeerkamer of hobbyruimte.

Daarnaast beschikt deze verdieping over extra bergruimte in de aanwezige inbouwkasten achter de knieschotten. Zo wordt de beschikbare ruimte optimaal benut zonder dat dit ten koste gaat van het wooncomfort.

Tuin

De woning beschikt over een fraai aangelegde achtertuin, die is ingericht met een combinatie van sierbestrating, groenperken en kunstgras. Dankzij de strakke betegeling is de tuin onderhoudsvriendelijk en biedt deze volop ruimte voor een zithoek, speelruimte en extra beplanting. De aanwezigheid van diverse groenaccenten, een palm en olijfboom geven de tuin een speels en sfeervol karakter.

Achter in de tuin staat een royale overkapping met berging. Deze sfeervolle veranda is voorzien van een zitgedeelte en biedt de ideale plek om het hele jaar door te genieten van het buitenleven. Het overdekte terras is perfect geschikt voor gezellige avonden met vrienden of familie, en biedt tevens praktische ruimte voor een barbecue of buitenkeuken.

De tuin is volledig omsloten door een houten schutting, waardoor u hier veel privacy ervaart. Dankzij de gunstige ligging en de directe verbinding met de woonkamer via openslaande deuren loopt binnen en buiten naadloos in elkaar over.

Bijzonderheden

Bouwjaar 2011

Woonoppervlakte ca. 158 m²

Perceeloppervlakte 163 m²

Woning is zeer goed onderhouden en luxe uitgevoerd met diverse kwaliteitsmaterialen

Centraal stofzuigsysteem aanwezig in de hele woning

Benedenverdieping voorzien van screens, met aan de achterzijde een extra zonnescherm

Eerste en tweede etage hebben elektrische rolluiken

14 zonnepanelen:
Voorzijde voorzien van 6 zonnepanelen
Achterzijde voorzien van 8 zonnepanelen

Kenmerken