Beschrijving

Sommige woningen zijn tot in de puntjes verzorgd. Verdistraat 92 is er zo één. Deze tussenwoning uit 1973 is in 2022 volledig verbouwd én uitgebouwd, waardoor hij niet alleen modern en comfortabel aanvoelt, maar ook meteen instapklaar is. Met 118 m² woonoppervlakte en drie ruime slaapkamers biedt dit huis alles wat je zoekt voor fijn gezinsleven.

Bij binnenkomst valt direct de ruimtelijkheid en het licht op. De vernieuwde afwerking en het eigentijdse ontwerp zorgen voor een luxe uitstraling. Dankzij de uitbouw aan de achterzijde is de woonkamer verrassend ruim geworden. Een plek waar je meteen tot rust komt. Alles is aangepakt: van vloer tot elektra, niets is aan het toeval overgelaten. De keuken sluit hier naadloos op aan en vormt het hart van de woning. Hier komen koken, tafelen en samenzijn vanzelf samen.

Op de eerste verdieping bevinden zich twee verzorgde slaapkamers en een badkamer die zo uit een woonmagazine lijkt te komen. Met zowel een bad als een douche is dit een plek om heerlijk te ontspannen. De zolderverdieping biedt een derde slaapkamer met volop licht en ruimte, ideaal als masterbedroom, werkkamer of logeerkamer.

De achtertuin ligt op het oosten en is onderhoudsvriendelijk bestraat, met groene bloembakken langs de zijkanten. Achterin de tuin is een sfeervolle zitplek gecreëerd, perfect voor een kop koffie in de ochtendzon of een ontspannen zomeravond. De stenen schuur biedt praktische opbergruimte voor fietsen en tuingereedschap.

De Verdistraat ligt in een rustige, kindvriendelijke buurt met alle voorzieningen dichtbij. Supermarkt, scholen, zwembad en sportgelegenheden zijn op loop- of fietsafstand te vinden. Bovendien woon je hier aan de rand van de polder. Ideaal voor wie graag even de natuur in wil om een stukje te wandelen of fietsen.

Verdistraat 92 is een woning die voelt als nieuw, met de charme van een vertrouwde buurt. Een plek waar comfort, stijl en rust perfect samenkomen.

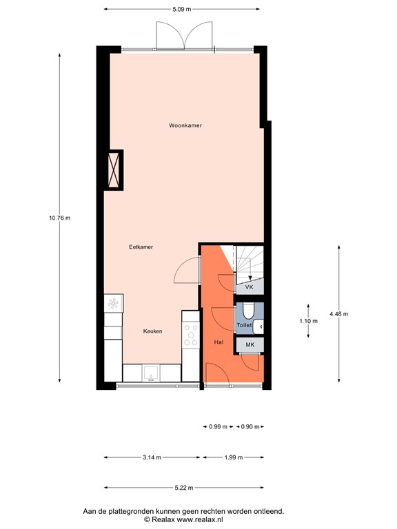
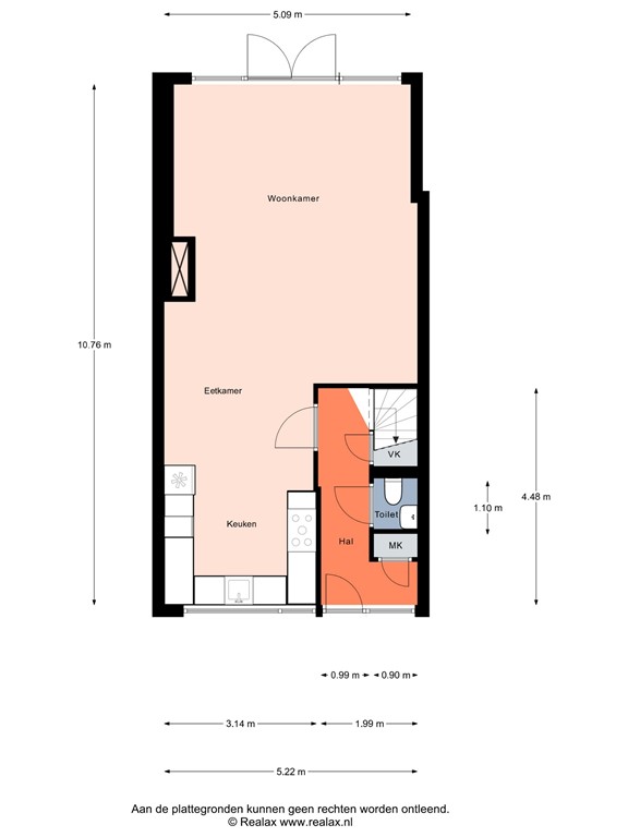
Indeling

Bij binnenkomst via de voordeur betreed je de hal, waar zich de meterkast  en een separaat toilet bevinden. Vanuit de hal is tevens de trapkast bereikbaar welke ideaal is voor extra opbergruimte.

Aan de voorzijde van de woning ligt de moderne keuken, uitgevoerd in een rechte opstelling en voorzien van diverse inbouwapparatuur, waaronder een kookplaat, afzuigkap, oven en spoelbak. Dankzij het raam aan de voorzijde geniet de keuken van prettig daglicht.

Aan de achterzijde van de woning bevindt zich de ruime woonkamer. De open indeling zorgt voor een aangename verbinding tussen koken, eten en wonen. De woonkamer biedt volop ruimte voor een comfortabele zithoek en heeft dubbele openslaande deuren naar de tuin, waardoor binnen en buiten mooi in elkaar overlopen.

De gehele begane grond heeft een praktische en lichte indeling met veel leefruimte en een logische doorloop van de entree tot aan de achtertuin.

Eerste verdieping

Via de trap kom je op de overloop, die toegang biedt tot twee ruime slaapkamers en de badkamer.

Aan de achterzijde van de woning bevindt zich de hoofdslaapkamer, die dankzij de breedte van het huis veel ruimte en lichtinval biedt. Deze kamer biedt voldoende plaats voor een groot tweepersoonsbed en een royale kledingkast. Oorspronkelijk bestond deze ruimte uit twee afzonderlijke slaapkamers; indien gewenst is het eenvoudig om deze indeling weer te herstellen, waardoor er drie slaapkamers op deze verdieping ontstaan.

Aan de voorzijde ligt de tweede slaapkamer, eveneens van goed formaat en daarmee geschikt als kinderkamer, werkkamer of logeerkamer. Beide kamers beschikken over praktische vaste kasten, ideaal voor extra bergruimte.

De badkamer is centraal gelegen en voorzien van een moderne inrichting met een wastafelmeubel, toilet, douche en ligbad.

De overloop is licht en overzichtelijk en verbindt alle vertrekken op deze verdieping op een prettige manier.

Tweede verdieping

Via de vaste trap bereik je de tweede verdieping, die is ingericht als ruime slaapkamer. Dankzij de rechte gevels en de aanwezige dakramen is deze kamer licht en veelzijdig in gebruik welke ideaal is als ouderslaapkamer, werkkamer of hobbyruimte.

Aan beide zijden bevinden zich praktische vaste kasten achter de knieschotten, waardoor er volop bergruimte is voor koffers, seizoensspullen of kleding.

Op de overloop is ruimte voor de wasmachine en droger, keurig weggewerkt in een aparte hoek.

Deze verdieping combineert functionaliteit met comfort en maakt het huis compleet met een volwaardige extra woonlaag.

Tuin

De fraai aangelegde achtertuin ligt op het oosten en is volledig bestraat, waardoor deze bijzonder onderhoudsvriendelijk is. Dankzij de ruime opzet is er voldoende plek voor zowel een gezellige loungehoek als een eettafel, perfect om in alle rust van de ochtend- en middagzon te genieten.

Achterin de tuin bevindt zich een houten berging, ideaal voor het opbergen van fietsen, tuingereedschap of de barbecue. Vanuit de berging is tevens de achterom bereikbaar, die uitkomt op een breed pad met directe toegang tot de straat — praktisch voor het buitenzetten van de afvalcontainers of het stallen van fietsen.

De tuin is sfeervol ingericht met strakke plantenbakken, sierlijke beplanting en een vaste zithoek voorzien van een gashaardtafel en zonwering. Hierdoor is het ook op koelere avonden heerlijk vertoeven.

Kenmerken