Beschrijving

Dit is een woning waar met aandacht is gewoond en dat merk je direct zodra je binnenkomt. Gebouwd in 1999 en in uitstekende staat, met diverse updates die ervoor zorgen dat het geheel helemaal van deze tijd is. Het energielabel A onderstreept het comfortabele en moderne karakter van de woning en maakt dit een huis waar je zorgeloos kunt instappen.

De uitgebouwde woonkamer vormt een fijne, ruime leefplek met een prettige balans tussen comfort en sfeer. De eikenhouten vloer en het verlaagde plafond geven de ruimte een verzorgde en warme uitstraling, terwijl de extra meters aan de achterzijde zorgen voor een logische en royale indeling. De keuken sluit hier mooi op aan en is netjes onderhouden, praktisch in gebruik en passend bij de rest van het huis.

Ook de verdiepingen zijn keurig afgewerkt. Zowel de eerste als de tweede etage zijn netjes verzorgd, waardoor je hier direct gebruik kunt maken van de ruimtes zoals ze zijn. Of het nu gaat om slaapkamers, een werkplek of extra bergruimte, de woning biedt flexibiliteit zonder dat je eerst hoeft te klussen.

De achtertuin ligt op het noorden, maar profiteert van een zeer vrije ligging aan de westzijde. Hierdoor valt de zon hier tot ver in de avond prettig de tuin in en voelt het geheel open en ruim aan. Een fijne buitenruimte waar je op verschillende momenten van de dag goed zit.

De Wilgenstraat 16 ligt in een jonge, kindvriendelijke buurt met een fijne woon sfeer. Tegenover de woning bevindt zich een parkeerhaven en een grote speeltuin. Het centrum van Spakenburg is bovendien snel en makkelijk bereikbaar, waardoor rust en levendigheid hier mooi samenkomen.

Een verzorgde woning op een prettige plek, klaar voor een nieuwe bewoner.

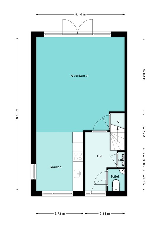
Indeling

Entree via de hal met meterkast, toilet en trapopgang naar de verdieping. Vanuit de hal is er toegang tot de keuken, die aan de voorzijde van de woning is gesitueerd en voorzien is van een rechte keukenopstelling. De lichte woonkamer strekt zich uit over de volle breedte van de woning en staat in open verbinding met de keuken. Aan de achterzijde bevindt zich een brede pui met openslaande deuren naar de tuin, wat zorgt voor veel lichtinval en een prettig contact met buiten.

Eerste verdieping

Overloop met toegang tot drie slaapkamers en de badkamer. Aan de voorzijde bevindt zich een ruime slaapkamer. Aan de achterzijde zijn nog twee slaapkamers gesitueerd, allemaal geschikt als slaap-, werk- of kinderkamer. De badkamer is voorzien van een douche, wastafel en toilet en is praktisch ingedeeld. Vanaf de overloop is tevens de trapopgang bereikbaar.

Tweede verdieping

Via vaste trap bereikbare zolderverdieping met overloop en een slaapkamer. De overloop is ruim opgezet en biedt plaats aan de cv-installatie en wasmachineaansluiting. Daarnaast is er een separate kast aanwezig voor extra bergruimte. De slaapkamer beschikt over daglicht en is geschikt als extra slaap-, werk- of hobbykamer. Door de nokhoogte van circa 3,22 meter voelt deze verdieping verrassend ruim aan en biedt zij diverse gebruiksmogelijkheden.

Tuin

De fraai aangelegde achtertuin is gelegen op het noorden en biedt een verrassend prettige buitenruimte. De tuin is grotendeels bestraat en daardoor onderhoudsvriendelijk, met voldoende ruimte voor zowel een comfortabele loungehoek als een eettafel. Door de open ligging en de breedte van de tuin is er gedurende de dag zowel zon als schaduw aanwezig, wat het een fijne plek maakt om op elk moment van de dag buiten te zitten. Achterin de tuin bevindt zich een praktische berging met elektra, ideaal voor het stallen van fietsen en tuingereedschap. De tuin is volledig omsloten en biedt veel privacy.

Kenmerken