Beschrijving
Wonen in een gebouw met karakter én het comfort van nu, dat is precies wat je hier ervaart. Dit gemeentelijke monument, een indrukwekkende woonboerderij die ooit dienstdeed als antiekhandel, is in 2024 volledig getransformeerd tot een stijlvol geheel met meerdere appartementen. Koningin Wilhelminastraat 56-c voelt daardoor als nieuwbouw, met flink wat karakter.
Zodra je binnenstapt merk je het direct: strak afgewerkt, fris en helemaal van deze tijd. De woonkamer met open keuken vormt een fijne basis voor het dagelijks leven. Compact van opzet, maar verrassend compleet en slim ingedeeld. Hier kook je, ontspan je en ontvang je vrienden in een ruimte die warmte en comfort uitstraalt. De vloerverwarming op beide etages zorgt bovendien dat je hier comfortabel kan wonen!
Boven bevinden zich twee slaapkamers die zich moeiteloos aanpassen aan jouw woonwensen. Een fijne plek om tot rust te komen, een thuiswerkruimte of logeerkamer, de indeling geeft je alle vrijheid. Alles is met zorg vernieuwd, waardoor je hier zonder klussen of aanpassingen direct kunt gaan wonen.
Ook buiten is het plaatje compleet. Een eigen tuin waar je in alle rust kunt genieten en van verrassend veel privacy geniet. Daarnaast beschik je over een praktische berging en een eigen parkeerplaats aan de voorzijde van het gebouw. Thuiskomen is hier altijd ontspannen, zonder zoeken naar een plek.
De ligging maakt het geheel extra aantrekkelijk. Op loopafstand van het centrum van Spakenburg woon je hier met alle voorzieningen binnen handbereik, terwijl je tegelijkertijd geniet van de charme en uitstraling van een monumentaal pand.
Ben jij op zoek naar een instapklaar appartement met karakter, comfort en een eigen buitenruimte? Dan is dit zo’n plek die je in het echt moet ervaren.
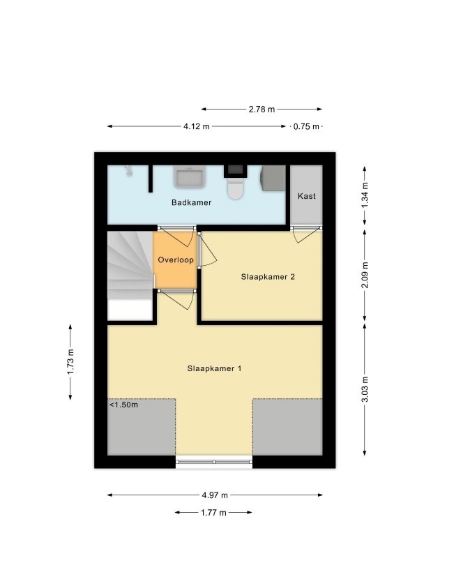
Indeling
Via de entree betreedt u de hal met toegang tot het toilet. Vanuit de hal loopt u door naar de lichte en ruime woonkamer, die dankzij de grote raampartij aan de voorzijde prettig wordt verlicht.
Aan de achterzijde van de woning bevindt zich de open keuken, opgesteld in een praktische rechte opstelling en voorzien van diverse inbouwapparatuur. De keuken biedt voldoende werk- en kastruimte en staat in directe verbinding met de woonkamer, wat zorgt voor een open en ruimtelijk geheel.
Naast de keuken bevindt zich een trapopgang naar de eerste verdieping.
Extern beschikt de woning over een separate berging, ideaal voor het stallen van fietsen en het opbergen van extra spullen.
Eerste verdieping
Via de vaste trap bereikt u de overloop, die toegang biedt tot twee slaapkamers en de badkamer.
De ruime hoofdslaapkamer is gelegen aan de voorzijde en beschikt over praktische bergruimte onder de schuine kap. De tweede slaapkamer bevindt zich aan de achterzijde en is uitstekend geschikt als kinder-, werk- of logeerkamer.
De badkamer is compleet uitgevoerd en voorzien van een wastafelmeubel, toilet en douche.
Tuin
De onderhoudsvriendelijke achtertuin is gelegen op het noorden en is volledig bestraat, waardoor u hier optimaal geniet van gemak en weinig onderhoud. Dankzij de beschutte ligging en de hoge gemetselde erfafscheiding biedt de tuin veel privacy en een fijne, rustige sfeer.
De tuin biedt voldoende ruimte voor het plaatsen van een gezellige lounge- of eethoek.