Meerwaerde Makelaars
Nieuw in verkoop

Te koop: Leeuwerik 25, 3752 ND Bunschoten-Spakenburg

€ 500.000,- k.k.

Beschrijving

Sommige huizen hebben simpelweg die fijne balans tussen ruimte, licht en luxe. Deze woning aan de Leeuwerik 25 is daar het perfecte voorbeeld van. Met 133 vierkante meter woonoppervlak, energielabel A+ en een eigen carport begint het comfort al bij aankomst.

Binnen vormt de prachtige keuken uit 2023 het hart van de woning. Het schiereiland met aangrenzende eettafel creëert een ruimtelijke indeling die meteen klopt: sfeervol, modern en ideaal voor het dagelijkse leven. De afwerking is strak en doordacht, waardoor elke meter optimaal voelt.

Op de eerste verdieping gaat dat prettige gevoel moeiteloos verder. Drie goed bemeten slaapkamers en een royale in 2019 vernieuwde badkamer bieden alle ruimte die je zoekt. Het huis is bovendien helemaal bij de tijd dankzij de hybride warmtepomp uit 2023, aangevuld met maar liefst twintig zonnepanelen die het wooncomfort versterken en het geheel compleet maken.

En dan de buitenruimte: een diepe tuin met veranda waar je in alle rust kunt ontspannen. Het is zo’n plek waar je direct ziet hoe het dagelijks leven zich vanzelf vormt.

Hier woon je met gemak, sfeer en maximaal plezier. Kom het zelf ervaren.

Indeling

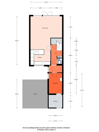
Via de entree bereikt u de hal met meterkast, toilet en trapopgang. Vanuit de hal loopt u door naar de ruime woonkamer, die over de volledige achterzijde van de woning is gesitueerd en middels openslaande deuren toegang biedt tot de tuin. Aan de voorzijde bevindt zich de open keuken, ingericht in een praktische opstelling.

Aansluitend aan de hal ligt de bijkeuken, welke extra bergruimte en functionaliteit biedt. Vanuit de bijkeuken is er toegang tot de berging én tot de carport aan de voorzijde.

Eerste verdieping

Vanaf de overloop heeft u toegang tot drie goed bemeten slaapkamers, waarvan één aan de voorzijde en twee aan de achterzijde van de woning zijn gelegen. De moderne badkamer bevindt zich aan de voorzijde en is uitgerust met een douche, ligbad, wastafelmeubel met dubbele wasbakken en toilet.

Tweede verdieping

De vaste trap brengt u naar de ruime zolderverdieping. Deze open ruimte biedt volop mogelijkheden, bijvoorbeeld voor het realiseren van een extra slaapkamer, werkkamer of hobbyruimte. Op deze verdieping bevinden zich tevens de aansluitingen voor de wasmachine en droger, evenals de opstelplaats van de technische installaties. Dankzij de dakramen valt er prettig daglicht binnen, waardoor de ruimte veelzijdig en goed te benutten is.

Tuin

De fraai aangelegde achtertuin is heerlijk ruim en onderhoudsvriendelijk ingericht. Direct achter de woning bevindt zich een royaal terras, perfect voor een grote eettafel en ideaal om tot in de late uurtjes van de avondzon te genieten. Verderop in de tuin vindt u een tweede zithoek met een sfeervolle overkapping, uitgevoerd in hout en voorzien van een gezellige loungeopstelling en extra bergruimte. Dit is dé plek om het hele jaar door beschut te ontspannen, te barbecueën of gasten te ontvangen.

De tuin is omringd door groen en diverse borders met vaste beplanting, waardoor een prettige combinatie ontstaat van privacy en sfeer. Dankzij de praktische indeling, meerdere terrassen en het vrije uitzicht richting de achterzijde, biedt deze tuin voor elk moment van de dag een fijne plek om te zitten.

Bijzonderheden

- 20 zonnepanelen
- cv ketel + hybride warmtepomp

Kenmerken

Overdracht
Referentienummer 07447
Vraagprijs € 500.000,- k.k.
Elektra € 33,75
Gas € 41,27
Inrichting Niet gestoffeerd
Inrichting Niet gemeubileerd
Status Nieuw in verkoop
Aanvaarding In overleg
Aangeboden sinds Woensdag 10 december 2025
Bouw
Type object Woonhuis, eengezinswoning, tussenwoning
Soort bouw Bestaande bouw
Bouwperiode 1981
Dakbedekking Dakpannen
Type dak Zadeldak
Isolatievormen Dakisolatie
Dubbel glas
Muurisolatie
Oppervlaktes en inhoud
Perceeloppervlakte 177 m²
Woonoppervlakte 133 m²
Woonkameroppervlakte 20,2 m²
Keukenoppervlakte 16,22 m²
Inhoud 479 m³
Oppervlakte externe bergruimte 2 m²
Oppervlakte gebouwgebonden buitenruimte 16,1 m²
Indeling
Aantal bouwlagen 3
Aantal kamers 4 (waarvan 3 slaapkamers)
Aantal badkamers 1 (en 1 apart toilet)
Tuin
Type Achtertuin
Hoofdtuin Ja
Oriëntering Oosten
Staat Normaal
Energieverbruik
Energielabel A+
CV ketel
CV ketel Nefit
Warmtebron Gas
Bouwjaar 2019
Combiketel Ja
Eigendom Eigendom
Uitrusting
Aantal parkeerplaatsen 1
Aantal overdekte parkeerplaatsen 1
Warm water CV-ketel
Verwarmingssysteem Centrale verwarming
Vloerverwarming (gedeeltelijk)
Warmtepomp
Keukenvoorzieningen Inbouwapparatuur
Badkamervoorzieningen Douche
Ligbad
Toilet
Wastafel
Wastafelmeubel
Tuin aanwezig Ja
Beschikt over een internetverbinding Ja
Heeft schuur/berging Ja
Heeft een dakraam Ja
Heeft zonnepanelen Ja
Kadastrale gegevens
Kadastrale aanduiding Bunschoten G 1284
Perceeloppervlakte 177 m²
Omvang Geheel perceel
Eigendomsituatie Eigen grond
Neem contact met mij op

Plattegronden

Brochure(s) en overige bijlagen

Sluiten

Recent bekeken