Meerwaerde Makelaars

Te koop: Bolder 9, 3751 ZM Bunschoten-Spakenburg

€ 620.000,- k.k.

Beschrijving

Bolder 9 – een tussenwoning met grootse ambities

Met een woonoppervlakte van maar liefst 153 m² en een indeling die je normaal alleen in het hogere segment tegenkomt, is Bolder 9 allesbehalve een standaard tussenwoning. De ruimte, de afwerking en de slimme opzet maken dit huis tot een comfortabele gezinswoning met nét dat beetje extra. En het mooiste? Alles is recent vernieuwd. Denk aan nieuwe vloeren, een moderne keuken en stijlvolle stalen deuren die zorgen voor een eigentijdse uitstraling. Alles klopt hier gewoon.

Zodra je binnenkomt, merk je het verschil. De uitbouw op de begane grond zorgt voor twee royale leefruimtes: een gezellige woonkamer én een woonkeuken waar je met gemak een grote eettafel kwijt kunt. De stalen deuren geven karakter en zorgen voor een fijne verbinding tussen de ruimtes. En dankzij de nieuwe schuifpui loopt de tuin naadloos over in de woonkamer—een plek waar je ’s zomers heerlijk buiten leeft.

Boven is het net zo ruim. Op de eerste verdieping vind je drie fijne slaapkamers, een luxe badkamer en een apart toilet. Praktisch én comfortabel. En dan is er nog de tweede verdieping: twee extra slaapkamers en een grote voorzolder met plek voor de was, opslag en alles wat je uit het zicht wilt houden.

Wat dit huis extra aantrekkelijk maakt, is de ligging. Rustig, maar toch op korte afstand van het dorpscentrum. Je wandelt zo naar de winkels of een gezellig terras. En parkeren? Aan de overkant zijn ruime parkeerhavens, dus je hebt altijd plek.

Bolder 9 is een huis dat je verrast. Ruimte, stijl en comfort komen hier moeiteloos samen. Een plek waar je je zó thuis voelt.

Indeling

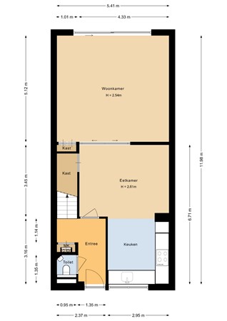
Je komt binnen via de entree met toegang tot de meterkast en het toilet. Vanuit de hal stap je in de eetkamer, die direct in verbinding staat met de keuken aan de voorzijde. Achterin vind je de lichte woonkamer met schuifdeuren naar de tuin. Daarnaast zijn er handige kasten onder de trap voor extra bergruimte.

Eerste verdieping

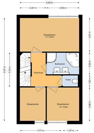
Op de eerste verdieping vind je drie ruime slaapkamers. De moderne badkamer is voorzien van een ligbad, dubbele wastafel en douche. Daarnaast is er een separaat toilet aanwezig, bereikbaar via de overloop.

Tweede verdieping

Op de tweede verdieping tref je nog twee slaapkamers, beide voorzien van handige knieschotten. Daarnaast is er op de overloop ruimte voor de wasmachine en extra opbergruimte.

Tuin

De woning beschikt over een ruime, onderhoudsvriendelijke achtertuin met veel bestrating, ideaal voor buitenactiviteiten en gezellig samenzijn. Aan de woningzijde zorgen grote schuifpuien voor een fijne verbinding tussen binnen en buiten. Achter in de tuin staat een praktische berging met dubbele deuren en ramen, perfect te gebruiken als opslagruimte of hobbyruimte.

Bijzonderheden

- Recent begane grond verbouwd
Vloeren, deuren, keuken en schuifpui

- Dakkapel voor en achterzijde

- Energielabel A

Kenmerken

Overdracht
Referentienummer 07386
Vraagprijs € 620.000,- k.k.
Aanvaarding In overleg
Aangeboden sinds Woensdag 3 september 2025
Laatste wijziging Maandag 15 september 2025
Bouw
Type object Woonhuis, eengezinswoning, tussenwoning
Soort bouw Bestaande bouw
Bouwperiode 2006
Dakbedekking Dakpannen
Type dak Zadeldak
Isolatievormen Dakisolatie
Dubbel glas
HR-glas
Muurisolatie
Vloerisolatie
Oppervlaktes en inhoud
Perceeloppervlakte 158 m²
Woonoppervlakte 153 m²
Woonkameroppervlakte 27,7 m²
Keukenoppervlakte 29,05 m²
Inhoud 530 m³
Oppervlakte externe bergruimte 13,9 m²
Indeling
Aantal bouwlagen 3
Aantal kamers 6 (waarvan 5 slaapkamers)
Aantal badkamers 1 (en 2 aparte toiletten)
Tuin
Type Achtertuin
Hoofdtuin Ja
Oriëntering Noorden
Staat Normaal
Energieverbruik
Energielabel A
CV ketel
Warmtebron Gas
Bouwjaar 2007
Combiketel Ja
Eigendom Eigendom
Uitrusting
Aantal parkeerplaatsen 1
Warm water CV-ketel
Verwarmingssysteem Centrale verwarming
Keukenvoorzieningen Inbouwapparatuur
Badkamervoorzieningen Douche
Ligbad
Wastafel
Heeft kabel-tv Ja
Tuin aanwezig Ja
Beschikt over een internetverbinding Ja
Heeft schuur/berging Ja
Kadastrale gegevens
Kadastrale aanduiding Bunschoten H 1998
Perceeloppervlakte 158 m²
Omvang Geheel perceel
Neem contact met mij op

Plattegronden

Brochure(s) en overige bijlagen

Kenmerken door vrienden

  • Voldoende parkeergelegenheid
    2
    Endorser Endorser
  • Zonnige tuin
    2
    Endorser Endorser
  • Kindvriendelijke buurt
    2
    Endorser Endorser
  • Gezellige buren
    2
    Endorser Endorser

Vrienden aan het woord

Sluiten

Recent bekeken