Meerwaerde Makelaars
Verkocht onder voorbehoud

Verkocht onder voorbehoud: Boterland 11, 3751 KB Bunschoten-Spakenburg

€ 380.000,- k.k.

Beschrijving

In de jonge wijk Rengerswetering staat op eiland 4 een modern appartementencomplex waar starters precies vinden wat ze zoeken: praktisch ingedeeld en sfeervol afgewerkt. Extra fijn: het appartement is pas drie jaar oud en dus nog zo goed als nieuw.

Het appartement zelf is compact maar verrassend compleet opgezet. De leefruimte vormt het hart van de woning en voelt prettig licht aan. De moderne keuken sluit hier mooi op aan en is uitgevoerd met een bar, waardoor er een gezellige plek ontstaat om aan te schuiven voor een kop koffie of om even bij te praten terwijl er gekookt wordt. Met twee slaapkamers biedt het appartement bovendien meer ruimte dan je misschien verwacht, ideaal voor wie net wat extra flexibiliteit wil.

Het gebouw is modern gebouwd en volledig gasloos uitgevoerd met een warmtepomp, zonnepanelen en goede isolatie. Dat resulteert in energielabel A++ en opvallend lage energielasten van nog geen €20 per maand.

De afwerking is verzorgd en eigentijds. De badkamer is netjes uitgevoerd en de houten plafonds geven het appartement een warme, knusse uitstraling die direct een huiselijk gevoel creëert.

Vanuit de woonkamer stap je zo het balkon op. Dit balkon ligt op het zuiden, waardoor je hier al vroeg in het jaar heerlijk in de zon zit. Doordat het balkon deels inpandig is, zit je hier bovendien ook in het voor- en najaar comfortabel en beschut, terwijl je tegelijkertijd mooi van je af kijkt.

Ook praktisch is er goed over het gebouw nagedacht. In de gezamenlijke fietsenstalling kun je je fiets altijd droog kwijt en daarnaast is er een gezamenlijke tuin waar bewoners gebruik van kunnen maken. Een fijne plek als je bijvoorbeeld een keer buiten wilt zitten of iets te vieren hebt.

De ligging op eiland 4 in Rengerswetering maakt het geheel compleet. Een jonge en geliefde woonwijk met een frisse uitstraling, waar je rustig woont en toch alle voorzieningen van Spakenburg binnen handbereik hebt.

Indeling

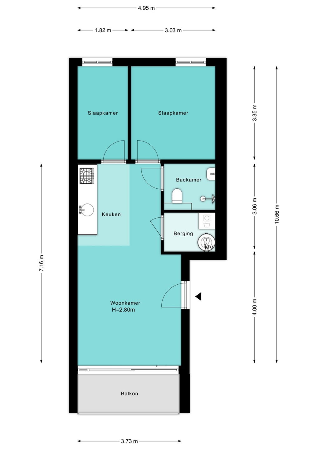
Via de entree stap je direct de lichte woonkamer binnen, die dankzij de brede raampartij en de toegang tot het balkon een prettige en open sfeer heeft. De open keuken sluit mooi aan op de living en is praktisch ingericht.

Vanuit de woonkamer zijn de overige vertrekken bereikbaar. Het appartement beschikt over twee slaapkamers van goed formaat. Daarnaast is er een badkamer en een separate berging met opstelplaats voor de wasapparatuur en extra bergruimte.

Balkon

Het balkon is gunstig gelegen op het zuiden, waardoor je hier volop van de zon kunt genieten. Een fijne plek om rustig te zitten met een kop koffie of om na een lange dag buiten te ontspannen. Dankzij de ligging en de beschutte opzet zit je hier comfortabel, met een leuk uitzicht over de omgeving.

Kenmerken

Overdracht
Referentienummer 07487
Vraagprijs € 380.000,- k.k.
Servicekosten € 128,58
Inrichting Niet gestoffeerd
Inrichting Niet gemeubileerd
Status Verkocht onder voorbehoud
Aanvaarding In overleg
Aangeboden sinds Donderdag 19 maart 2026
Laatste wijziging Dinsdag 7 april 2026
Bouw
Type object Appartement, bovenwoning
Woonlaag 3e woonlaag
Soort bouw Bestaande bouw
Bouwperiode 2023
Dakbedekking Kunststof
Type dak Platdak
Isolatievormen HR-glas
Volledig geïsoleerd
Oppervlaktes en inhoud
Woonoppervlakte 46,9 m²
Woonkameroppervlakte 14,92 m²
Keukenoppervlakte 11,41 m²
Inhoud 160 m³
Oppervlakte overige inpandige ruimten 0,6 m²
Oppervlakte gebouwgebonden buitenruimte 6 m²
Indeling
Aantal bouwlagen 1
Aantal kamers 3 (waarvan 2 slaapkamers)
Aantal badkamers 1
Energieverbruik
Energielabel A++
Uitrusting
Warm water Elektrische boiler
Verwarmingssysteem Elektrische verwarming
Badkamervoorzieningen Douche
Toilet
Wastafel
Heeft een balkon Ja
Beschikt over een internetverbinding Ja
Vereniging van Eigenaren
Ingeschreven bij de KvK Ja
Jaarlijkse vergadering Ja
Periodieke bijdrage Ja
Reservefonds Ja
Meer jaren onderhoudsplan Ja
Onderhoudsverwachting Ja
Opstal verzekering Ja
Kadastrale gegevens
Kadastrale aanduiding Bunschoten N 1864A
Perceeloppervlakte 692 m²
Omvang Appartementsrecht of complex
Eigendomsituatie Eigen grond
Indexnummer 10
Neem contact met mij op

Plattegronden

Brochure(s) en overige bijlagen

Sluiten

Recent bekeken