Meerwaerde Makelaars
Verkocht onder voorbehoud

Verkocht onder voorbehoud: Da Costastraat 18A, 3751 GC Bunschoten-Spakenburg

€ 470.000,- k.k.

Beschrijving

Royaal wonen verdeeld over meerdere woonlagen, met ruimte, comfort en flexibiliteit als uitgangspunt. Deze woning beslaat drie woonlagen en biedt een verrassend ruime en prettige leefomgeving die zich onderscheidt door zijn indeling en mogelijkheden.

De nieuwe keuken vormt het centrale punt van de woning en sluit mooi aan op de leefruimte. Dankzij de vloerverwarming is het hier het hele jaar door aangenaam wonen. Met maar liefst vijf slaapkamers is er volop ruimte voor een groot gezin, werken aan huis of het combineren van wonen en hobby’s. Elke woonlaag heeft zijn eigen karakter, wat zorgt voor een fijne balans tussen samen leven en privacy.

Het dakterras biedt een heerlijke buitenplek waar je in alle rust kunt genieten van zon en ruimte. Daarnaast beschikt de woning over een eigen berging en een parkeerplek, waardoor ook praktisch gezien aan alles is gedacht.

Eerste verdieping

Via de overloop bereikt u het separate toilet en de garderobekast. De verdieping beschikt over een ruime, lichte woonkamer met grote raampartijen en directe toegang tot het zonnige balkon. Via een trap vanaf het terras bereikt u de tuin, met aansluitend een pad naar de berging. Aangrenzend aan de woonkamer bevindt zich de open keuken, die praktisch is ingericht en in open verbinding staat met het leefgedeelte. De goede maatvoering en prettige lichtinval zorgen hier voor een aangename woonverdieping met een fijne balans tussen wonen en koken.

Tweede verdieping

Via de overloop zijn alle vertrekken op deze verdieping bereikbaar. De verdieping beschikt over drie slaapkamers van verschillende afmetingen, waardoor deze ruimte zich uitstekend leent voor een gezin, thuiswerken of logees. De badkamer is praktisch ingericht en voorzien van douche, wastafel en toilet. Daarnaast is er bergruimte aanwezig, ideaal voor extra opslag. Dankzij de rechte gevels zijn de kamers efficiënt in te delen en is er sprake van een prettige lichtinval.

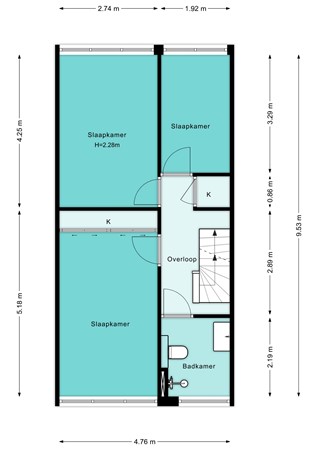
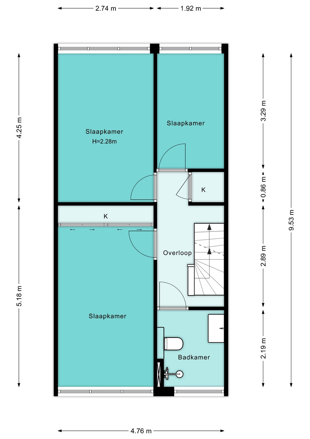
Overige verdiepingen

Via de overloop bereikt u op deze verdieping twee volwaardige slaapkamers, beide met een prettige lichtinval dankzij de dakramen. De kamers zijn goed van formaat en multifunctioneel inzetbaar, bijvoorbeeld als slaap-, werk- of hobbyruimte. De praktische indeling en extra bergruimte achter de knieschotten maken deze verdieping bijzonder functioneel.

Balkon

Het ruime balkon is gelegen op het westen en vormt een heerlijke plek om tot in de avond van de zon te genieten. Vanuit de woonkamer heeft u direct toegang tot dit buitenverblijf

Kenmerken

Overdracht
Referentienummer 07473
Vraagprijs € 470.000,- k.k.
Servicekosten € 1,-
Inrichting Niet gestoffeerd
Inrichting Niet gemeubileerd
Status Verkocht onder voorbehoud
Aanvaarding In overleg
Aangeboden sinds Maandag 19 januari 2026
Laatste wijziging Woensdag 11 maart 2026
Bouw
Type object Appartement, bovenwoning
Woonlaag 2e woonlaag
Soort bouw Bestaande bouw
Bouwperiode 1970
Dakbedekking Dakpannen
Type dak Zadeldak
Isolatievormen Dakisolatie
Dubbel glas
Spouwmuren
Oppervlaktes en inhoud
Perceeloppervlakte 163 m²
Woonoppervlakte 125,3 m²
Woonkameroppervlakte 19,71 m²
Keukenoppervlakte 14,88 m²
Inhoud 379 m³
Oppervlakte externe bergruimte 5,2 m²
Oppervlakte gebouwgebonden buitenruimte 17,1 m²
Balkonoppervlakte 16,66 m²
Indeling
Aantal bouwlagen 4
Aantal kamers 6 (waarvan 5 slaapkamers)
Aantal badkamers 1 (en 1 apart toilet)
Energieverbruik
Energielabel B
CV ketel
Warmtebron Gas
Combiketel Ja
Eigendom Eigendom
Uitrusting
Aantal parkeerplaatsen 1
Warm water CV-ketel
Verwarmingssysteem Centrale verwarming
Vloerverwarming (gedeeltelijk)
Badkamervoorzieningen Douche
Toilet
Wastafel
Heeft een balkon Ja
Beschikt over een internetverbinding Ja
Heeft schuur/berging Ja
Heeft een dakraam Ja
Kadastrale gegevens
Kadastrale aanduiding Bunschoten K 2274
Omvang Appartementsrecht of complex
Eigendomsituatie Eigen grond
Indexnummer A1
Neem contact met mij op

Plattegronden

Brochure(s) en overige bijlagen

Sluiten

Recent bekeken