Meerwaerde Makelaars
Verkocht onder voorbehoud

Verkocht onder voorbehoud: Dorpsstraat 4, 3751 ER Bunschoten-Spakenburg

€ 550.000,- k.k.

Beschrijving

Dorpsstraat 4 – ruim en karaktervol wonen

Aan de Dorpsstraat staat deze stijlvolle woning, die met haar royale uitstraling direct opvalt. Binnen zet dat gevoel zich moeiteloos voort: ruimte, licht en comfort komen hier prachtig samen.

De woning is in 2012 volledig onder handen genomen, waarbij alles technisch én esthetisch in topconditie is gebracht. Nieuwe kozijnen, vernieuwde elektra en leidingwerk, een moderne keuken en een frisse badkamer, alles is met zorg en oog voor detail uitgevoerd. De royale woonkamer voelt direct uitnodigend aan en sluit prachtig aan op de ruime woonkeuken, waar koken en samenzijn het hart van het huis vormen.

Boven vind je drie slaapkamers die stuk voor stuk prettig van formaat zijn, ideaal voor een gezin of voor wie graag wat extra ruimte wil voor werken of logeren. De tweede etage is verrassend ruim; hier kun je nog alle kanten op. Je geniet er van een heerlijk badmoment met uitzicht op de molen, een uniek detail dat de woning extra karakter geeft.

Ook de ligging is uitstekend: centraal in het dorp, maar met de rust die hoort bij comfortabel wonen. Vanuit hier wandel je zo langs de stadsweiden, haal je je boodschappen om de hoek en vind je achter de woning volop parkeergelegenheid.

Een huis met de charme van vroeger, het comfort van nu en de ruimte om echt te leven. Welkom aan Dorpsstraat 4.

De woning heeft momenteel energielabel E, maar hier liggen duidelijke kansen. Met isolatie van de muren en vloeren zijn al flinke stappen te zetten richting een duurzamer en comfortabeler huis. We vertellen je graag meer over de mogelijkheden om met een beperkte investering mooie verbeteringen te realiseren.

Indeling

Bij binnenkomst via de voordeur betreed je de entree, die voorzien is van een meterkast en een separaat toilet met fontein. Vanuit de hal is er toegang tot zowel de trapopgang naar de verdieping als de royale leefruimte.

De woonkamer is verrassend ruim opgezet en beschikt over een plafondhoogte van 2,50 meter. Dankzij de grote raampartijen komt er veel natuurlijk licht binnen, wat zorgt voor een prettige en open sfeer. De woonkamer biedt meer dan voldoende ruimte voor een comfortabele zithoek.

Aansluitend aan de woonkamer bevindt zich de eetkamer met openhaard, die naadloos overloopt in de open keuken. Deze open indeling zorgt voor een gezellige verbinding tussen koken, eten en ontspannen. De keuken is gesitueerd aan de achterzijde en heeft een praktische opstelling met voldoende werk- en bergruimte. Vanuit de keuken is er toegang tot de berging, ideaal voor het opbergen van proviand, schoonmaakspullen of een extra koelkast/vriezer.

Eerste verdieping

Via de trap kom je op de overloop die toegang biedt tot drie ruime slaapkamers en de badkamer.

Aan de achterzijdezijde bevinden zich twee slaapkamers, beide met een prettige lichtinval dankzij de grote raampartijen.

De derde slaapkamer, aan de voorzijde van de woning, is zeer royaal en beschikt over een walk-in closet/inloopkast, ideaal voor kleding en accessoires. Deze kamer leent zich tevens uitstekend als master bedroom.

De badkamer is modern van opzet en voorzien van een douche, wastafel en tweede toilet. Dankzij het raam is er daglicht en natuurlijke ventilatie aanwezig.

Verder zijn er op de verdieping diverse vaste kasten aanwezig, die zorgen voor veel praktische bergruimte.

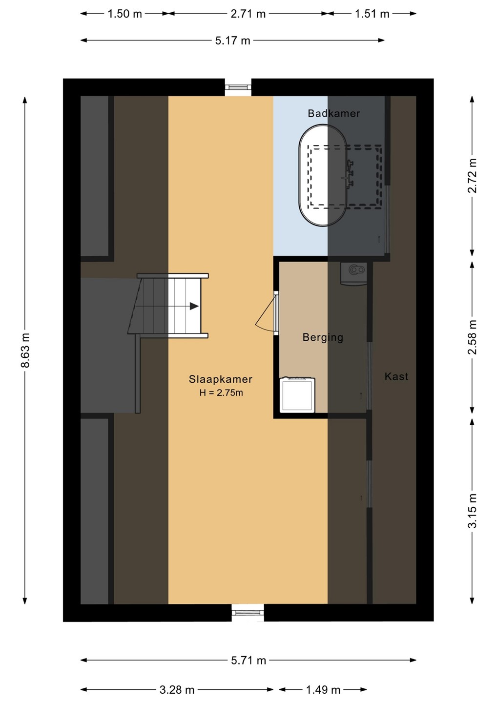
Tweede verdieping

Via de vaste trap bereik je de tweede verdieping, die verrassend ruim is opgezet en diverse gebruiksmogelijkheden biedt.

De verdieping beschikt over een royale slaapkamer met een plafondhoogte van maar liefst 2,75 meter, wat zorgt voor een ruimtelijk gevoel. Dankzij de aanwezige ramen aan zowel de voor- als achterzijde is er veel daglichtinval. Deze kamer kan uitstekend dienstdoen als extra slaapkamer, werkkamer of hobbyruimte.

Aan de achterzijde bevindt zich een tweede badkamer, voorzien van een stijlvol vrijstaand ligbad en voldoende ruimte om een luxe wellnessgevoel te creëren.

Daarnaast is er een berging aanwezig, waarin zich ook de wasmachineaansluiting bevindt. Deze praktische ruimte biedt extra opbergmogelijkheden, evenals de vaste kast die zich aan de zijkant van de verdieping bevindt.

Tuin

De woning beschikt over een sfeervolle en onderhoudsvriendelijke stadstuin, volledig betegeld en voorzien van een kunstgrasgedeelte.

Een echte eyecatcher is de ruime overkapping met houten balken en een gezellige houtkachel — dé ideale plek om ook in het voor- en najaar heerlijk buiten te zitten. Hier kun je ontspannen met een goed boek of gezellig tafelen met vrienden en familie.

Achter in de tuin bevindt zich een praktische berging voor fietsen en tuingereedschap, evenals een achterom voor extra gemak. De tuin is verder smaakvol aangekleed met muurbeplanting en sfeerverlichting, wat zorgt voor een warme en intieme sfeer in de avonduren.

Kenmerken

Overdracht
Referentienummer 07426
Vraagprijs € 550.000,- k.k.
Inrichting Niet gestoffeerd
Inrichting Niet gemeubileerd
Status Verkocht onder voorbehoud
Aanvaarding In overleg
Aangeboden sinds Woensdag 29 oktober 2025
Laatste wijziging Maandag 22 december 2025
Bouw
Type object Woonhuis, eengezinswoning, geschakelde woning
Soort bouw Bestaande bouw
Bouwperiode 1950
Dakbedekking Dakpannen
Type dak Zadeldak
Isolatievormen Dakisolatie
Grotendeels dubbel glas
Oppervlaktes en inhoud
Perceeloppervlakte 115 m²
Woonoppervlakte 135,7 m²
Woonkameroppervlakte 26,35 m²
Keukenoppervlakte 23,13 m²
Inhoud 500 m³
Oppervlakte externe bergruimte 6,3 m²
Indeling
Aantal bouwlagen 3
Aantal kamers 5 (waarvan 4 slaapkamers)
Aantal badkamers 2 (en 1 apart toilet)
Tuin
Type Achtertuin
Hoofdtuin Ja
Oriëntering Zuiden
Heeft een achterom Ja
Tuin 2 - Type Voortuin
Tuin 2 - Oriëntering Oosten
Energieverbruik
Energielabel E
CV ketel
CV ketel Combi
Warmtebron Gas
Combiketel Ja
Eigendom Eigendom
Uitrusting
Warm water CV-ketel
Verwarmingssysteem Centrale verwarming
Keukenvoorzieningen Inbouwapparatuur
Badkamervoorzieningen Badkamer 1 Douche
Toilet
Wastafelmeubel
Badkamervoorzieningen Badkamer 2 Ligbad
Tuin aanwezig Ja
Heeft schuur/berging Ja
Heeft een dakraam Ja
Kadastrale gegevens
Kadastrale aanduiding Bunschoten K 4778
Perceeloppervlakte 115 m²
Omvang Geheel perceel
Eigendomsituatie Eigen grond
Neem contact met mij op

Plattegronden

Brochure(s) en overige bijlagen

Sluiten

Recent bekeken