Meerwaerde Makelaars

Onder bod: Dwarskamp 7, 3751 JS Bunschoten-Spakenburg

€ 525.000,- k.k.

Beschrijving

Heerlijk ruim wonen in de Rengerswetering

Dwarskamp 7 laat zien hoe fijn het wonen kan zijn in een jonge, kindvriendelijke wijk. Voor de deur ligt een groen park met speeltuin, waardoor kinderen veilig kunnen spelen en jij zelf kunt genieten van het vrije uitzicht.

Binnen word je verrast door de ruimte. Dankzij de uitbouw is de woonkamer royaal en licht, met vloerverwarming die zorgt voor een aangenaam comfort. Alles is netjes afgewerkt en heeft een moderne uitstraling, zodat je zonder klussen kunt verhuizen.

De tuin op het westen is een plek om van te houden: zonnig, overzichtelijk en met veel privacy door de parkeerhaven achter de woning. Bovendien heb je altijd de luxe van een eigen parkeerplek direct bij huis.

De wijk Rengerswetering staat bekend om zijn rustige, vriendelijke sfeer, terwijl alle voorzieningen zoals scholen, supermarkt en het centrum van Spakenburg snel te bereiken zijn.

Zie jij jezelf hier al genieten van ruimte, comfort en het buitenleven?

Indeling

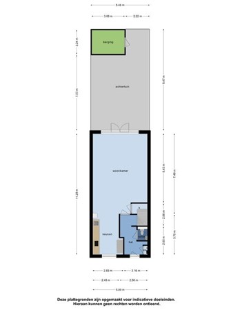
Entree met hal, toilet en trapopgang. Aan de voorzijde bevindt zich de keuken, terwijl de ruime woonkamer aan de achterzijde toegang geeft tot de tuin met berging.

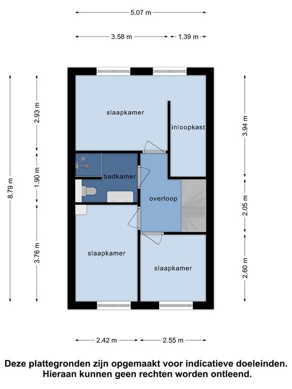
Eerste verdieping

Overloop met toegang tot drie slaapkamers, een inloopkast en de badkamer.

Tweede verdieping

Ruime zolder met knieschotten en volop mogelijkheden voor extra slaap- of werkruimte.

Tuin

De achtertuin is onderhoudsvriendelijk aangelegd met voldoende ruimte voor een lounge- en eethoek. Achterin staat een praktische berging en er is een achterom. aanwezig.

Kenmerken

Overdracht
Referentienummer 07369
Vraagprijs € 525.000,- k.k.
Inrichting Niet gestoffeerd
Inrichting Niet gemeubileerd
Status Onder bod
Aanvaarding In overleg
Aangeboden sinds Donderdag 25 september 2025
Laatste wijziging Donderdag 9 oktober 2025
Bouw
Type object Woonhuis, eengezinswoning, tussenwoning
Soort bouw Bestaande bouw
Bouwperiode 2019
Dakbedekking Dakpannen
Type dak Zadeldak
Isolatievormen Dakisolatie
Dubbel glas
HR-glas
Muurisolatie
Oppervlaktes en inhoud
Perceeloppervlakte 130 m²
Woonoppervlakte 129,59 m²
Woonkameroppervlakte 38,12 m²
Keukenoppervlakte 10,47 m²
Inhoud 465 m³
Oppervlakte externe bergruimte 6,68 m²
Indeling
Aantal bouwlagen 3
Aantal kamers 4 (waarvan 3 slaapkamers)
Aantal badkamers 1
Tuin
Type Achtertuin
Hoofdtuin Ja
Oriëntering West
Heeft een achterom Ja
Staat Normaal
Energieverbruik
Energielabel A
CV ketel
CV ketel Combi
Warmtebron Gas
Bouwjaar 2019
Combiketel Ja
Eigendom Eigendom
Uitrusting
Warm water CV-ketel
Verwarmingssysteem Centrale verwarming
Vloerverwarming (gedeeltelijk)
Keukenvoorzieningen Inbouwapparatuur
Badkamervoorzieningen Inloopdouche
Toilet
Wastafelmeubel
Heeft airco Ja
Tuin aanwezig Ja
Heeft rolluiken Ja
Heeft schuur/berging Ja
Heeft een dakraam Ja
Kadastrale gegevens
Kadastrale aanduiding Bunschoten N 1457
Perceeloppervlakte 130 m²
Neem contact met mij op

Plattegronden

Brochure(s) en overige bijlagen

Sluiten

Recent bekeken