Meerwaerde Makelaars

Te koop: Heemraadstraat 23A, 3752 EM Bunschoten-Spakenburg

€ 660.000,- k.k.

Beschrijving

Heemraadstraat 23A & Heemraadstraat 23B

Een belegging met directe inkomsten én toekomstig rendement, aan de Heemraadstraat 23a en 23b komen kansen samen in één solide geheel. Dit object bestaat uit twee zelfstandige woningen met ieder een eigen woonbestemming, waardoor ze afzonderlijk verhuurd en verkocht kunnen worden. Een interessante combinatie voor wie zoekt naar spreiding, flexibiliteit en groeimogelijkheden binnen één investering.

Nummer 23a bevindt zich op de begane grond en verrast met ruimte. Dankzij de royale uitbouw aan de achterzijde beschikt deze woning over maar liefst 102 m² woonoppervlakte. De huidige indeling met vier afzonderlijke slaapkamers maakt het mogelijk om per kamer te verhuren, wat zorgt voor een aantrekkelijke huuropbrengst en een efficiënte benutting van de vierkante meters. De basis is praktisch en functioneel, met volop mogelijkheden om het rendement op termijn verder te optimaliseren.

Nummer 23b betreft een maisonettewoning met twee slaapkamers en de mogelijkheid nog een derde of vierde te creëren. Deze woning wordt momenteel verhuurd voor onbepaalde tijd en genereert daarmee stabiele inkomsten. De opzet over meerdere woonlagen geeft het geheel een zelfstandig karakter, wat de verhuurbaarheid ten goede komt.

De combinatie van twee zelfstandige woonunits, de aanwezige huurstroom en de potentie tot verdere optimalisatie maken dit object tot een strategische belegging. Gelegen aan de Heemraadstraat, nabij het centrum van Spakenburg met alle voorzieningen binnen handbereik, is dit een investering met perspectief, zowel voor de korte als de lange termijn.

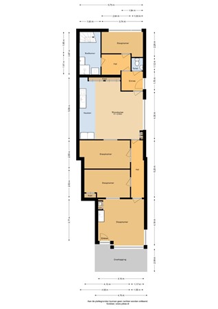
Indeling

.

Eerste verdieping

.

Tweede verdieping

.

Tuin

.

Bijzonderheden

- Jaarhuur 23a: 21.600
- Jaarhuur 23b: 12.084
Er zijn op lange termijn optimalisatie mogelijkheden, wij lichten deze graag toe.

Contracten:
Heemraadstraat 23a: verhuurd op basis van een overeenkomst voor bepaalde tijd aan een zakelijke huurder.
Heemraadstraat 23b: verhuurd voor onbepaalde tijd aan een particuliere huurder.

Kenmerken

Overdracht
Referentienummer 07462
Vraagprijs € 660.000,- k.k.
Servicekosten € 1,-
Inrichting Niet gestoffeerd
Inrichting Niet gemeubileerd
Aanvaarding In overleg
Aangeboden sinds Donderdag 12 februari 2026
Laatste wijziging Woensdag 25 februari 2026
Bouw
Type object Appartement, beneden/boven woning
Woonlaag 1e woonlaag
Soort bouw Bestaande bouw
Bouwperiode 1967
Dakbedekking Dakpannen
Type dak Zadeldak
Oppervlaktes en inhoud
Perceeloppervlakte 143 m²
Woonoppervlakte 177,5 m²
Woonkameroppervlakte 49,57 m²
Keukenoppervlakte 14,72 m²
Inhoud 669 m³
Oppervlakte overige inpandige ruimten 7,5 m²
Oppervlakte gebouwgebonden buitenruimte 14,5 m²
Indeling
Aantal bouwlagen 2
Aantal kamers 9 (waarvan 7 slaapkamers)
Aantal badkamers 2 (en 1 apart toilet)
Tuin
Type Voortuin
Hoofdtuin Ja
Oriëntering Oosten
Staat Normaal
Energieverbruik
Energielabel E
CV ketel
CV ketel Combi
Warmtebron Gas
Combiketel Ja
Eigendom Eigendom
Uitrusting
Aantal parkeerplaatsen 1
Warm water CV-ketel
Verwarmingssysteem Centrale verwarming
Badkamervoorzieningen Badkamer 1 Douche
Wastafel
Badkamervoorzieningen Badkamer 2 Douche
Toilet
Tuin aanwezig Ja
Beschikt over een internetverbinding Ja
Heeft een dakraam Ja
Vereniging van Eigenaren
Ingeschreven bij de KvK Ja
Jaarlijkse vergadering Ja
Periodieke bijdrage Ja
Reservefonds Ja
Meer jaren onderhoudsplan Ja
Onderhoudsverwachting Ja
Opstal verzekering Ja
Kadastrale gegevens
Kadastrale aanduiding Bunschoten F 3413
Perceeloppervlakte 143 m²
Omvang Geheel perceel
Eigendomsituatie Eigen grond
Neem contact met mij op
Sluiten

Recent bekeken