Meerwaerde Makelaars
Verkocht onder voorbehoud

Verkocht onder voorbehoud: Oosterstraat 24, 3751 EH Bunschoten-Spakenburg

€ 542.500,- k.k.

Beschrijving

Oosterstraat 24 sfeervol wonen in een vernieuwd en verrassend ruim huis

Dit is zo’n woning waar je binnenstapt en direct voelt: hier klopt het. De houten vloer, de lichte inrichting en de haard geven de woonkamer een warme, eigentijdse uitstraling. Alles is de afgelopen jaren met smaak vernieuwd, waardoor het geheel een rustige en stijlvolle basis heeft.

Beneden loopt de ruimte prettig in elkaar over. De woonkamer voelt uitnodigend, terwijl de keuken modern is en flink van formaat, een plek waar koken en samenkomen vanzelf samenkomen. De bijkeuken met wasruimte is een fijne, praktische toevoeging die je dagelijks gemak geeft.

Ook boven verrast dit huis op een mooie manier. Dankzij de uitbouw over twee etages vind je hier een complete badkamer en drie goed ingedeelde slaapkamers. De masterbedroom strekt zich uit over de volle breedte van de woning en biedt daarmee die royaal oppervlak.

Buiten gaat het genieten moeiteloos door. De diepe tuin op het zuiden is een heerlijke plek die elk seizoen iets te bieden heeft. Met een sfeervolle pergola en een veranda creëer je hier eenvoudig je eigen groene oase, van koffie in de ochtendzon tot lange avonden buiten.

De Oosterstraat zelf ademt gezelligheid: een fijne, kindvriendelijke plek met een speeltuin om de hoek en alles wat je nodig hebt binnen handbereik.

Indeling

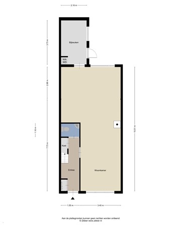
Bij binnenkomst betreedt u de woning via een ruime entree met meterkast (MK) en trapopgang naar de verdieping. Vanuit de hal heeft u toegang tot een separaat toilet, voorzien van een fontein, en een praktische voorraad-/technische ruimte (VK).

De hal leidt u naar de royale woonkamer, die dankzij de brede raampartij aan de voorzijde geniet van een aangename lichtinval. De woonkamer biedt volop ruimte voor een comfortabele zithoek en staat in open verbinding met de keuken.

De keuken bevindt zich achterin de woning en is ingericht met een recht keukenblok dat is voorzien van diverse apparatuur, waaronder een kookplaat en oven. Vanuit de keuken bereikt u via een binnendeur de bijkeuken, een ideale ruimte voor extra opslag, wasmachineopstelling of tweede koelkast. De bijkeuken beschikt over een eigen achterdeur, wat deze ruimte extra functioneel maakt.

Aan de achterzijde van de woning vindt u een set openslaande deuren, die zorgen voor een fijne verbinding tussen de keuken en de achtertuin.

Eerste verdieping

Via de trap bereikt u de overloop, die toegang biedt tot drie slaapkamers, de badkamer en een vaste kast.

Aan de achterzijde van de woning bevindt zich de royale hoofdslaapkamer. Deze kamer biedt veel ruimte en licht, en beschikt daarnaast over een eigen vaste kast, ideaal voor kleding of extra opbergruimte.

De badkamer ligt centraal op de verdieping en is ingericht met een hoekbad, aparte douche, wastafel en een tweede toilet. De ruimte heeft een speelse indeling en biedt alle comfort.

Aan de voorzijde van de woning vindt u twee slaapkamers, geschikt als kinder-, werk- of logeerkamer.

Tweede verdieping

Via de vaste trap bereikt u de praktische zolderverdieping. De overloop biedt toegang tot een ruime zolderkamer en beschikt daarnaast over een vaste kast, waar de cv-ketel is opgesteld.

De ruime zolderkamer is netjes afgewerkt en voorzien van grote dakkappelen, waardoor er veel natuurlijk licht naar binnen valt. De kamer biedt talloze mogelijkheden: denk aan een vierde slaapkamer, hobbyruimte, thuiskantoor of speelkamer. Aan de andere zijde van de overloop bevindt zich nog een extra vaste kast, ideaal voor seizoensspullen of overige opslag.

Dankzij de recht opgetrokken wanden en de goede lichtinval voelt deze verdieping verrassend ruim en veelzijdig aan.

Tuin

De fraai aangelegde achtertuin is gelegen op het zonnige zuidwesten en biedt hierdoor vrijwel de hele dag optimale zonligging. De tuin is stijlvol ingericht met een combinatie van sierbestrating, groenperkjes en meerdere zithoeken, waardoor er voor elk moment van de dag een fijne plek te vinden is.

Direct achter de woning bevindt zich een ruim terras, perfect voor een lounge- of eethoek. Langs de woning loopt een nette padstructuur die de verschillende delen van de tuin met elkaar verbindt. De borders zijn gevuld met diverse vaste planten en siergrassen, wat zorgt voor een verzorgde en natuurlijke uitstraling.

Achter in de tuin staat een royale overkapping met houten constructie. Deze sfeervolle plek biedt het hele jaar door de mogelijkheid om beschut te zitten. De tuin wordt omgeven door een combinatie van een gemetselde muur en zwarte houten schuttingen, wat niet alleen privacy biedt maar ook zorgt voor een strak en modern geheel.

Daarnaast is er aan de zijkant van de woning een achterom, waardoor de tuin ook praktisch bereikbaar is met fiets, tuinmateriaal of bijvoorbeeld de kliko.

Kortom: een zonnige, onderhoudsvriendelijke en sfeervolle achtertuin met volop mogelijkheden om te ontspannen, te dineren en te genieten.

Kenmerken

Overdracht
Referentienummer 07433
Vraagprijs € 542.500,- k.k.
Inrichting Niet gestoffeerd
Inrichting Niet gemeubileerd
Status Verkocht onder voorbehoud
Aanvaarding In overleg
Aangeboden sinds Woensdag 19 november 2025
Laatste wijziging Donderdag 18 december 2025
Bouw
Type object Woonhuis, eengezinswoning, hoekwoning
Soort bouw Bestaande bouw
Bouwperiode 1920
Dakbedekking Dakpannen
Type dak Zadeldak
Isolatievormen Dakisolatie
Grotendeels dubbel glas
Muurisolatie
Vloerisolatie
Oppervlaktes en inhoud
Perceeloppervlakte 200 m²
Woonoppervlakte 131,8 m²
Woonkameroppervlakte 14,45 m²
Keukenoppervlakte 26,68 m²
Inhoud 454 m³
Indeling
Aantal bouwlagen 3
Aantal kamers 5 (waarvan 4 slaapkamers)
Aantal badkamers 1 (en 1 apart toilet)
Tuin
Type Achtertuin
Hoofdtuin Ja
Oriëntering Zuid-west
Heeft een achterom Ja
Staat Prachtig aangelegd
Energieverbruik
Energielabel C
CV ketel
CV ketel Combi
Warmtebron Gas
Bouwjaar 2018
Combiketel Ja
Eigendom Eigendom
Uitrusting
Warm water CV-ketel
Verwarmingssysteem Centrale verwarming
Gashaard
Vloerverwarming (gedeeltelijk)
Keukenvoorzieningen Inbouwapparatuur
Badkamervoorzieningen Inloopdouche
Ligbad
Toilet
Wastafel
Wastafelmeubel
Glasvezelaansluiting aanwezig Ja
Tuin aanwezig Ja
Beschikt over een internetverbinding Ja
Kadastrale gegevens
Kadastrale aanduiding Bunschoten K 1432
Perceeloppervlakte 200 m²
Omvang Geheel perceel
Eigendomsituatie Eigen grond
Neem contact met mij op

Plattegronden

Brochure(s) en overige bijlagen

Sluiten

Recent bekeken