Meerwaerde Makelaars
Nieuw in verkoop

Te koop: Zuiderzeeboulevard 69, 3751 HC Bunschoten-Spakenburg

€ 850.000,- k.k.

Beschrijving

Wonen met uitzicht dat nooit verveelt.
Op de eerste etage van de Zuiderzeeboulevard 69 vind je een appartement waar ruimte, licht en beleving moeiteloos samenkomen. Met een indrukwekkende lengte van ruim zestien meter voelt deze woning direct royaal aan, terwijl de indeling zorgt voor een prettige flow van voor naar achter.

Aan de ene zijde ontvouwt zich het vrije uitzicht over het Eemmeer. Een uitzicht dat blijft trekken, van vroege ochtenden tot lange avonden. Aan de andere kant ligt het balkon op het zuiden, dat hier echt een verlengstuk van de woning is geworden. Dankzij de glazen serre en screens ontstaat er een plek waar binnen en buiten in elkaar overlopen en waar je het hele jaar door comfortabel zit.

De woonruimte strekt zich uit over de volledige lengte van het appartement en wordt op natuurlijke wijze verbonden door het kookeiland. Het vormt het hart van de woning, met aan de ene zijde de woonkamer en aan de andere zijde de eetruimte. Een indeling die niet alleen logisch is, maar ook uitnodigt tot ontspannen wonen en uitgebreid tafelen. De afwerking is verzorgd en modern, met een rustige uitstraling die perfect aansluit bij de ligging en het uitzicht.

Parkeren is hier altijd goed geregeld. In de parkeergarage onder het complex heb je je eigen plek, waardoor je elke dag comfortabel thuiskomt.

En dan de ligging. Je woont hier midden in het centrum van Spakenburg, met de haven op loopafstand en alle levendigheid om de hoek. Tegelijkertijd ervaar je rust, ruimte en dat vrije gevoel aan het water. Een combinatie die zelden zo goed samenkomt.

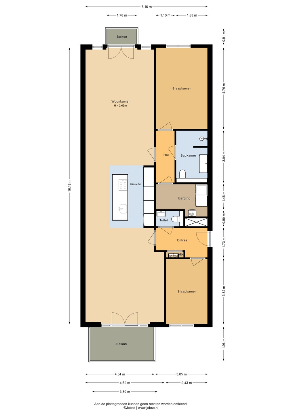
Indeling

Via de entree komt u in de hal met toegang tot een slaapkamer, het separate toilet en meterkast. De woning beschikt over twee slaapkamers, gelegen aan de voor- en achterzijde. De royale woon-/eetkamer met open keuken vormt het hart van het appartement en biedt aan beide zijden toegang tot een balkon, wat zorgt voor veel licht en een prettige doorzonindeling. De keuken is centraal geplaatst en praktisch ingedeeld. Via de tweede hal heeft u toegang tot de berging, badkamer en slaapkamer.

Balkon

Het appartement beschikt over twee balkons. Het balkon op het noorden biedt een schitterend uitzicht over het Eemmeer en vormt een heerlijke plek om te ontspannen. Het royale balkon aan de zuidzijde is perfect om van de zon te genieten.

Bijzonderheden

- BJ 2020
- 2 slaapkamers
- Balkon voor en achterzijde
- Balkonbeglazing + screens
- Parkeren in garage

Kenmerken

Overdracht
Referentienummer 07511
Vraagprijs € 850.000,- k.k.
Inrichting Niet gestoffeerd
Inrichting Niet gemeubileerd
Status Nieuw in verkoop
Aanvaarding In overleg
Aangeboden sinds Vrijdag 17 april 2026
Bouw
Type object Appartement, bovenwoning
Woonlaag 2e woonlaag
Soort bouw Bestaande bouw
Toegankelijkheid Mindervaliden
Senioren
Bouwperiode 2020
Dakbedekking Bitumen
Type dak Platdak
Isolatievormen HR-glas
Volledig geïsoleerd
Oppervlaktes en inhoud
Woonoppervlakte 114 m²
Inhoud 361 m³
Oppervlakte externe bergruimte 6,3 m²
Oppervlakte gebouwgebonden buitenruimte 9 m²
Balkonoppervlakte 9,42 m²
Indeling
Aantal bouwlagen 1
Aantal kamers 3 (waarvan 2 slaapkamers)
Aantal badkamers 1 (en 1 apart toilet)
Energieverbruik
Energielabel A
CV ketel
Warmtebron Gas
Bouwjaar 2020
Combiketel Ja
Eigendom Eigendom
Uitrusting
Aantal parkeerplaatsen 1
Aantal overdekte parkeerplaatsen 1
Warm water CV-ketel
Verwarmingssysteem Centrale verwarming
Vloerverwarming
Heeft een balkon Ja
Heeft een lift Ja
Glasvezelaansluiting aanwezig Ja
Beschikt over een internetverbinding Ja
Heeft schuur/berging Ja
Heeft zonnepanelen Ja
Kadastrale gegevens
Kadastrale aanduiding Bunschoten K 5271
Omvang Appartementsrecht of complex
Indexnummer A4
Kadastrale aanduiding Bunschoten K 5271
Omvang Appartementsrecht of complex
Eigendomsituatie Eigen grond
Indexnummer A7
Neem contact met mij op

Plattegronden

Brochure(s) en overige bijlagen

Sluiten

Recent bekeken