Meerwaerde Makelaars
Verkocht onder voorbehoud

Verkocht onder voorbehoud: Zuidwenk 26, 3751 CD Bunschoten-Spakenburg

€ 325.000,- k.k.

Beschrijving

Wie op zoek is naar een volwaardig huis voor een verrassend aantrekkelijke prijs, zit aan de Zuidwenk 26 helemaal goed. Deze woning combineert een leuke uitstraling met een compacte, maar complete opzet. Op de begane grond vormt de betonnen vloer met elektrische vloerverwarming een comfortabele basis, aangevuld met een nette keuken en een recent vernieuwd toilet. De fijne lichtinval zorgt ervoor dat de woning prettig en huiselijk aanvoelt, waardoor het hier al snel vertrouwd is.

Op de verdieping bevinden zich twee slaapkamers en de badkamer, wat zorgt voor een praktische en overzichtelijke indeling. Het huis heeft een solide basis en biedt ruimte om het verder naar eigen smaak in te richten. Met een slimme aanpak is dit een woning die je nog verder kunt verduurzamen en waar je echt iets moois van kunt maken.

De locatie maakt het plaatje compleet. Gelegen op loopafstand van het centrum van Spakenburg woon je hier centraal, met winkels, horeca en alle dagelijkse voorzieningen binnen handbereik. Een ideale kans voor wie slim wil kopen en graag dichtbij het hart van het dorp woont.

Indeling

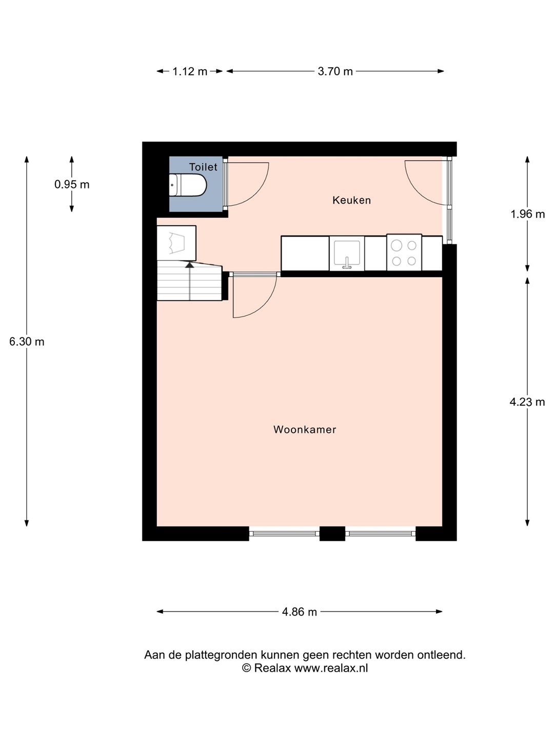
Via de entree komt u binnen in de keuken, die praktisch is ingedeeld met een rechte opstelling. Vanuit de keuken is er toegang tot het toilet en een deur naar de woonkamer. In de woonkamer bevindt zich de trapopgang naar de eerste verdieping. De woonkamer is gelegen aan de voorzijde van de woning en beschikt over grote raampartijen, wat zorgt voor een prettige lichtinval en een ruimtelijk gevoel.

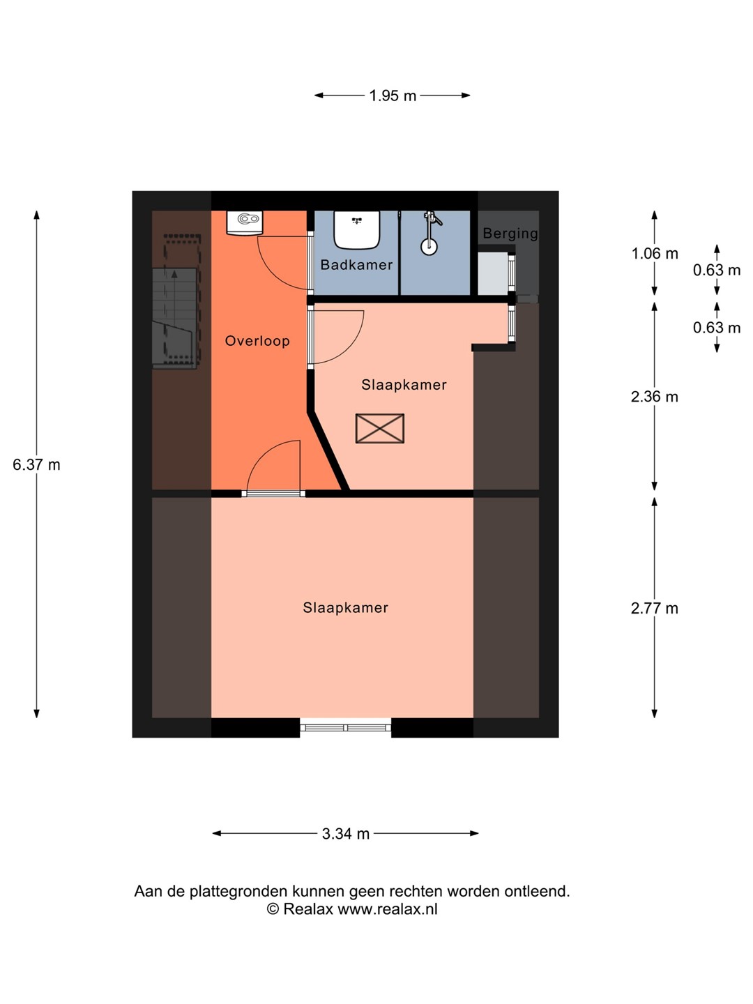
Eerste verdieping

De overloop biedt toegang tot twee slaapkamers, de badkamer en een berging. De grootste slaapkamer is gelegen aan de voorzijde en beschikt over een prettig formaat en goede lichtinval. De tweede slaapkamer is ideaal te gebruiken als kinder-, werk- of logeerkamer. De badkamer is praktisch ingericht en voorzien van een wastafel en douche.

Bijzonderheden

Energielabel uit 2016 aangevraagd o.b.v. bouwjaar.
Woning heeft dubbel glas, voorzetwanden en een betonnen vloer met vloerverwarming. energielasten G/W/L ca 100 euro per maand.

Kenmerken

Overdracht
Referentienummer 07470
Vraagprijs € 325.000,- k.k.
Inrichting Niet gestoffeerd
Inrichting Niet gemeubileerd
Status Verkocht onder voorbehoud
Aanvaarding In overleg
Aangeboden sinds Dinsdag 3 februari 2026
Laatste wijziging Woensdag 22 april 2026
Bouw
Type object Woonhuis, eengezinswoning, geschakelde twee onder een kap woning
Soort bouw Bestaande bouw
Bouwperiode 1920
Dakbedekking Dakpannen
Type dak Zadeldak
Isolatievormen Grotendeels dubbel glas
Oppervlaktes en inhoud
Perceeloppervlakte 47 m²
Woonoppervlakte 51,3 m²
Woonkameroppervlakte 20,56 m²
Keukenoppervlakte 7,25 m²
Inhoud 178 m³
Indeling
Aantal bouwlagen 2
Aantal kamers 3 (waarvan 2 slaapkamers)
Aantal badkamers 1 (en 1 apart toilet)
Energieverbruik
Energielabel G
CV ketel
CV ketel Combi
Warmtebron Gas
Combiketel Ja
Eigendom Eigendom
Uitrusting
Warm water CV-ketel
Verwarmingssysteem Centrale verwarming
Vloerverwarming (gedeeltelijk)
Keukenvoorzieningen Inbouwapparatuur
Badkamervoorzieningen Douche
Wastafel
Heeft airco Ja
Heeft een dakraam Ja
Kadastrale gegevens
Kadastrale aanduiding Bunschoten K 1399
Perceeloppervlakte 47 m²
Omvang Geheel perceel
Eigendomsituatie Eigen grond
Neem contact met mij op

Plattegronden

Brochure(s) en overige bijlagen

Sluiten

Recent bekeken