Meerwaerde Makelaars
Verkocht onder voorbehoud

Verkocht onder voorbehoud: Boterland 13, 3751 KB Bunschoten-Spakenburg

€ 359.000,- k.k.

Beschrijving

Een buitenkans voor starters: Boterland 13 is er zo één die je niet vaak tegenkomt. Dit moderne appartement heeft niet alleen een energielabel A+, maar ook een bijzonder fijne ligging in het gebouw.

Je woont hier helemaal bovenin, op de hoek, met een vrij uitzicht en prachtig licht dat binnenvalt door het extra zijraam. De woonkamer oogt hierdoor ruim en levendig, met een natuurlijke verbinding naar het zonnige balkon op het zuiden. Hier geniet je van de zon tot in de late uurtjes.

Het appartement is strak en met zorg afgewerkt; echt instapklaar. De keuken en badkamer zijn netjes, de kleuren tijdloos en de afwerking modern. Met twee slaapkamers is er volop ruimte voor logees, een thuiswerkplek of hobbykamer.

Boterland 13 ligt op een prettige, rustige locatie met alle dagelijkse voorzieningen binnen handbereik. Ideaal als je op zoek bent naar comfort, licht en gemak
helemaal klaar voor een nieuw begin.

Indeling

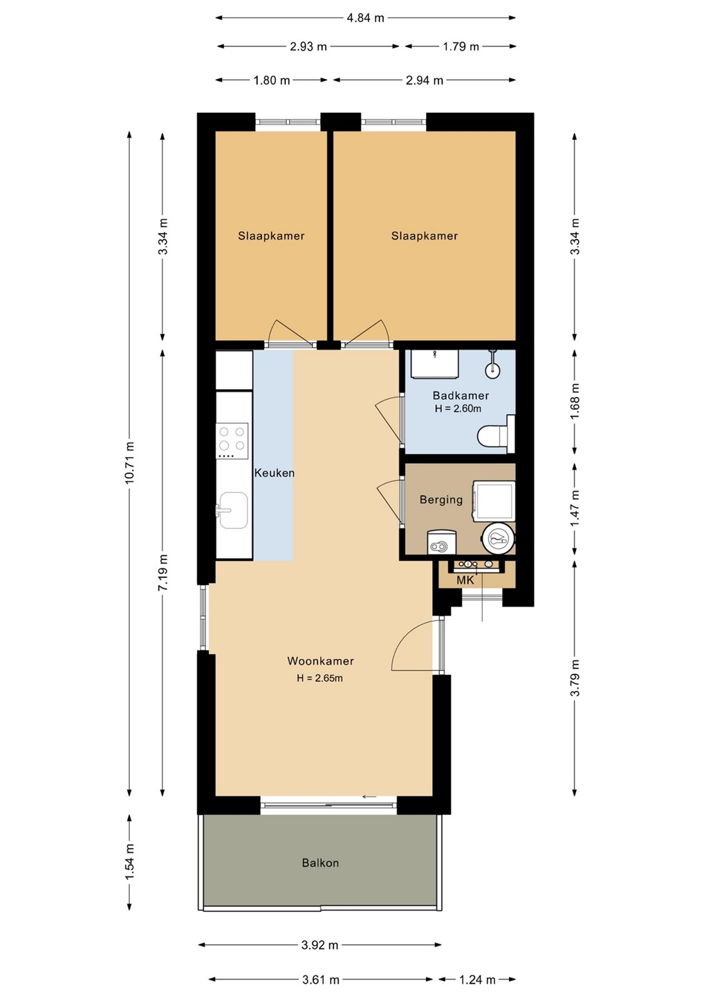
Aan de voorzijde bevindt zich de lichte woonkamer met een plafondhoogte van 2,65 meter. De grote raampartijen zorgen voor veel natuurlijk licht en geven toegang tot het balkon op het zuiden, waar je de hele dag van de zon kunt genieten.

De open keuken ligt in het verlengde van de woonkamer en is voorzien van een praktisch keukenblok met een kookplaat, oven en spoelbak. Dankzij de open indeling is dit een prettige plek om te koken en tegelijk contact te houden met het woongedeelte.

Aan de achterzijde liggen twee goed bemeten slaapkamers. Beide kamers zijn rechthoekig van vorm en daardoor uitstekend in te richten als hoofdslaapkamer en logeer- of werkkamer.

De badkamer is centraal gelegen en beschikt over een douche, wastafel en toilet. Aangrenzend bevindt zich een berging met ruimte voor de wasmachine en droger, en daarnaast een meterkast (MK) voor de technische installaties.

Balkon

Het ruime balkon ligt op het zuiden en biedt voldoende plek voor een zitje. Hier kun je in alle rust genieten van de zon en het uitzicht op de omgeving.

Bijzonderheden

- Elektrisch zonnescherm voorzijde
- Airco woonkamer
- Gezamenlijke tuin begane grond
- 5 Zonnepanelen

Kenmerken

Overdracht
Referentienummer 07410
Vraagprijs € 359.000,- k.k.
Servicekosten € 124,61
Inrichting Niet gestoffeerd
Inrichting Niet gemeubileerd
Status Verkocht onder voorbehoud
Aanvaarding In overleg
Aangeboden sinds Maandag 13 oktober 2025
Laatste wijziging Woensdag 22 oktober 2025
Bouw
Type object Appartement, beneden/boven woning
Woonlaag 3e woonlaag
Soort bouw Bestaande bouw
Bouwperiode 2023
Dakbedekking Kunststof
Type dak Platdak
Isolatievormen HR-glas
Oppervlaktes en inhoud
Woonoppervlakte 46,9 m²
Woonkameroppervlakte 14,86 m²
Keukenoppervlakte 9,96 m²
Inhoud 160 m³
Oppervlakte overige inpandige ruimten 0,6 m²
Oppervlakte gebouwgebonden buitenruimte 6 m²
Balkonoppervlakte 6,04 m²
Indeling
Aantal bouwlagen 1
Aantal kamers 3 (waarvan 2 slaapkamers)
Aantal badkamers 1
Energieverbruik
Energielabel A+
Uitrusting
Warm water Elektrische boiler
Verwarmingssysteem Airconditioning
Elektrische verwarming
Badkamervoorzieningen Douche
Toilet
Wastafelmeubel
Heeft airco Ja
Heeft een balkon Ja
Vereniging van Eigenaren
Ingeschreven bij de KvK Ja
Jaarlijkse vergadering Ja
Periodieke bijdrage Ja
Reservefonds Ja
Meer jaren onderhoudsplan Ja
Onderhoudsverwachting Ja
Opstal verzekering Ja
Kadastrale gegevens
Kadastrale aanduiding Bunschoten N 1818
Omvang Appartementsrecht of complex
Eigendomsituatie Eigen grond
Neem contact met mij op

Plattegronden

Brochure(s) en overige bijlagen

Sluiten

Recent bekeken