Meerwaerde Makelaars
Verkocht onder voorbehoud

Verkocht onder voorbehoud: Hartmanskamp 8, 3751 JG Bunschoten-Spakenburg

€ 349.000,- k.k.

Beschrijving

Hartmanskamp 8 – Perfect in balans

Dit appartement in de populaire wijk Rengerswetering biedt je net dat beetje extra. Een tweekamerappartement, maar verrassend ruimtelijk ingedeeld. De brede woonkamer voelt licht en open aan, met ruimte voor zowel een gezellige zithoek als een stijlvolle eethoek – alles in perfecte balans.

Afgelopen jaar heeft de woning een frisse update gekregen, waardoor het geheel nu modern en comfortabel aanvoelt. De PVC-vloer, het verlaagde plafond en de strakke afwerking vormen samen een eigentijds geheel dat direct goed voelt.

Het zonnige balkon ligt op het zuiden, zodat je het hele jaar door van de zon kunt genieten – van een kop koffie in de ochtend tot een borrel in de namiddag.

Een appartement dat klopt in sfeer, indeling én gevoel. Zie jij dat ook? Dan is dit jouw kans om het zelf te ervaren.

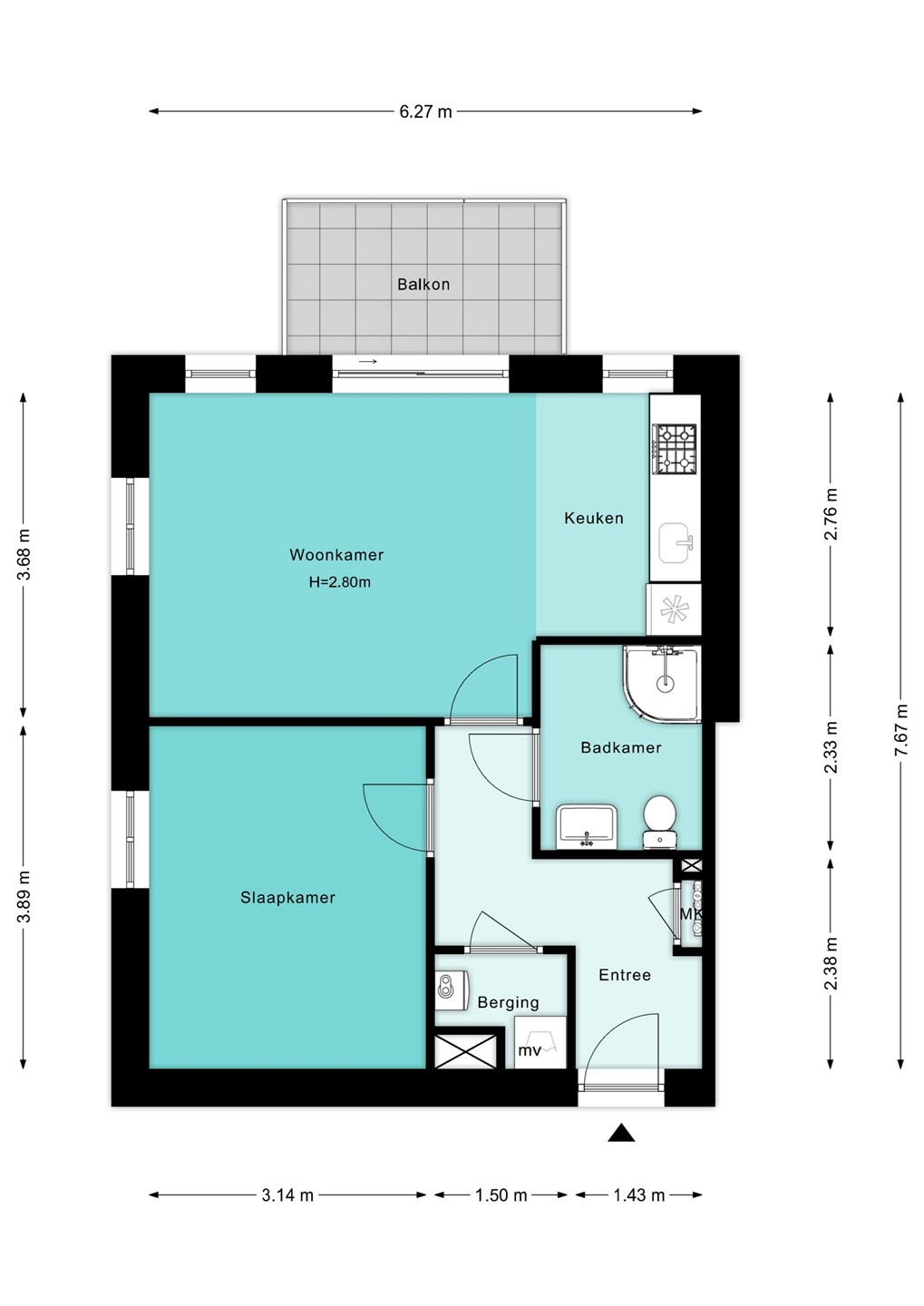
Indeling

Via de entree kom je in de hal met toegang tot alle vertrekken. Hier bevinden zich tevens de meterkast en een berging met aansluiting voor de wasmachine en droger.

De lichte woonkamer met een plafondhoogte van 2,80 meter biedt ruimte voor een comfortabele zithoek en eethoek. De open keuken is praktisch ingedeeld en voorzien van inbouwapparatuur. Vanuit de woonkamer is er toegang tot het balkon, waar je heerlijk buiten kunt zitten.

De slaapkamer ligt aan de rustige zijde van de woning. De badkamer is uitgerust met een douche, wastafel en toilet.

Balkon

Het zonnige balkon van circa 8 m² ligt op het zuiden en is toegankelijk vanuit de woonkamer. Kortom een heerlijke plek om van de zon te genieten.

Kenmerken

Overdracht
Referentienummer 07432
Vraagprijs € 349.000,- k.k.
Servicekosten € 109,43
Inrichting Niet gestoffeerd
Inrichting Niet gemeubileerd
Status Verkocht onder voorbehoud
Aanvaarding In overleg
Aangeboden sinds Donderdag 13 november 2025
Laatste wijziging Maandag 1 december 2025
Bouw
Type object Appartement, bovenwoning
Woonlaag 2e woonlaag
Soort bouw Bestaande bouw
Toegankelijkheid Senioren
Bouwperiode 2012
Dakbedekking Dakpannen
Type dak Zadeldak
Isolatievormen Volledig geïsoleerd
Oppervlaktes en inhoud
Woonoppervlakte 48 m²
Woonkameroppervlakte 15,82 m²
Keukenoppervlakte 6,72 m²
Inhoud 140 m³
Oppervlakte gebouwgebonden buitenruimte 4,4 m²
Balkonoppervlakte 5,44 m²
Indeling
Aantal bouwlagen 1
Aantal kamers 2 (waarvan 1 slaapkamer)
Aantal badkamers 1
Locatie
Ligging Dichtbij openbaar vervoer
In woonwijk
Energieverbruik
Energielabel A
CV ketel
CV ketel Intergas
Warmtebron Gas
Bouwjaar 2024
Combiketel Ja
Eigendom Eigendom
Uitrusting
Warm water CV-ketel
Verwarmingssysteem Centrale verwarming
Badkamervoorzieningen Douche
Toilet
Wastafel
Wastafelmeubel
Heeft een balkon Ja
Heeft kabel-tv Ja
Beschikt over een internetverbinding Ja
Vereniging van Eigenaren
Ingeschreven bij de KvK Ja
Jaarlijkse vergadering Ja
Periodieke bijdrage Ja
Reservefonds Ja
Meer jaren onderhoudsplan Ja
Opstal verzekering Ja
Kadastrale gegevens
Kadastrale aanduiding Bunschoten N 873
Omvang Appartementsrecht of complex
Eigendomsituatie Eigen grond
Neem contact met mij op

Plattegronden

Brochure(s) en overige bijlagen

Sluiten

Recent bekeken