Meerwaerde Makelaars

Onder bod: Kubboot 7, 3751 ZJ Bunschoten-Spakenburg

€ 500.000,- k.k.

Beschrijving

Levensloopbestendig wonen op een toplocatie

Op zoek naar een woning die comfort en gemak naadloos combineert? Kubboot 7 is zo’n zeldzame vondst. Alles wat je nodig hebt vind je gelijkvloers: een ruime woonkamer met fijne lichtinval, een keuken en praktische bijkeuken, én een slaapkamer met badkamer op de begane grond.

Toch blijft er boven volop ruimte over. Ideaal voor logés, kleinkinderen die blijven slapen of een hobby die vraagt om een eigen plek. Zo heb je de luxe van gelijkvloers wonen, zonder in te leveren op mogelijkheden.

Dankzij de recente bouw vormt de woning een solide basis om helemaal naar je eigen smaak te maken. En de ligging maakt het plaatje compleet: op loopafstand van het gezellige centrum van Spakenburg woon je hier niet alleen praktisch, maar ook heerlijk centraal.

Een pareltje als dit komt niet vaak voorbij. Zie jij jezelf hier al neerstrijken?

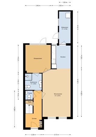
Indeling

Via de entree bereikt u de hal met toilet, bergkast en trapopgang. De lichte woonkamer vormt het hart van de woning en staat in verbinding met de keuken. Aansluitend bevindt zich een praktische bijkeuken, ideaal voor extra opslag of het plaatsen van witgoed.

De woning beschikt verder over een ruime slaapkamer en een badkamer met douche, wastafel en tweede toilet.

Eerste verdieping

Via de overloop bereikt u een tweede, ruime slaapkamer. Daarnaast zijn er meerdere bergingen aanwezig, ideaal voor het opbergen van spullen of het creëren van een hobbyruimte. Dankzij de praktische indeling en de vaste kasten is er volop bergruimte beschikbaar, terwijl de verdieping tegelijkertijd voldoende leefcomfort biedt.

Tuin

De fraai aangelegde achtertuin is onderhoudsvriendelijk en biedt volop ruimte om buiten te genieten. Er is voldoende plek voor een eettafel en een loungehoek, zodat u zowel in de zon als onder de overkapping heerlijk kunt ontspannen. Dankzij de houten berging met overkapping beschikt u over extra bergruimte en een gezellige plek om tot in de late uurtjes buiten te zitten. De tuin is bereikbaar via een achterom en heeft een mooie combinatie van bestrating en groen, wat zorgt voor een verzorgde uitstraling.

Kenmerken

Overdracht
Referentienummer 07437
Vraagprijs € 500.000,- k.k.
Inrichting Niet gestoffeerd
Inrichting Niet gemeubileerd
Status Onder bod
Aanvaarding In overleg
Aangeboden sinds Maandag 3 november 2025
Laatste wijziging Woensdag 28 januari 2026
Bouw
Type object Woonhuis, eengezinswoning, tussenwoning
Soort bouw Bestaande bouw
Toegankelijkheid Mindervaliden
Senioren
Bouwperiode 1994
Dakbedekking Dakpannen
Type dak Zadeldak
Isolatievormen Dakisolatie
Dubbel glas
Vloerisolatie
Oppervlaktes en inhoud
Perceeloppervlakte 165 m²
Woonoppervlakte 102 m²
Woonkameroppervlakte 23,42 m²
Keukenoppervlakte 7,61 m²
Inhoud 372 m³
Oppervlakte externe bergruimte 7,09 m²
Indeling
Aantal bouwlagen 2
Aantal kamers 3 (waarvan 2 slaapkamers)
Aantal badkamers 1 (en 1 apart toilet)
Tuin
Type Achtertuin
Hoofdtuin Ja
Oriëntering Zuiden
Heeft een achterom Ja
Staat Normaal
Energieverbruik
Energielabel B
CV ketel
CV ketel Combi
Warmtebron Gas
Bouwjaar 2010
Combiketel Ja
Eigendom Eigendom
Uitrusting
Aantal parkeerplaatsen 1
Warm water CV-ketel
Verwarmingssysteem Centrale verwarming
Badkamervoorzieningen Douche
Toilet
Wastafel
Wastafelmeubel
Heeft kabel-tv Ja
Tuin aanwezig Ja
Heeft schuur/berging Ja
Heeft een dakraam Ja
Kadastrale gegevens
Kadastrale aanduiding Bunschoten H 1477
Perceeloppervlakte 165 m²
Omvang Geheel perceel
Eigendomsituatie Eigen grond
Neem contact met mij op

Plattegronden

Brochure(s) en overige bijlagen

Sluiten

Recent bekeken